
Nowatzki Immobilien GmbH & Co. KG
Herrn Detlef NOWATZKI
+49 ···
Nr. anzeigenPreise & Kosten
zzgl. Nebenkosten
Provision für Mieter
Keine Maklerprovision vom Mieter !
Warum sehe ich diese Anzeige? – Du siehst diese Anzeige basierend auf Ihrer Navigation auf unserer Website und den Suchkriterien, die du verwendet hast.
Lage
Gewerbegebiet Glashüttenweg
Zwischen der Trave im Westen und dem Wohngebiet Karlshof im Osten befindet sich das Gewerbegebiet Glashüttenweg. Die Hafenstraße ist 1966 durch den Neubau der Neuen Hafenstraße in ihrem Reststück zu einer Sackgasse umgewidmet worden, die vom Glashüttenweg abzweigt.
Sie erreichen das...
Büro-/Praxisfläche
Kategorie
Bürofläche
Baujahr
1976
Bezug
nach Vereinbarung
Geschoss
1. Geschoss
Energie & Heizung
Warum sehe ich diese Anzeige? – Du siehst diese Anzeige basierend auf Ihrer Navigation auf unserer Website und den Suchkriterien, die du verwendet hast.
Weitere Energiedaten
Energieträger
Gas
Details
Objektbeschreibung
Im Gewerbegebiet Glashüttenweg wird ein großes Gewerbeobjekt frei.
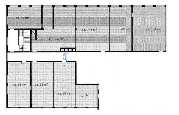
Im 1. Obergeschoss kann eine Bürofläche von insgesamt 1.546m² angemietet werden. Es gibt allerdings auch die Möglichkeit einer Aufteilung der Flächen wie folgt:
Fläche grau 683m²
Die oben genannten Anmietungsoptionen können Sie den...
Ausstattung
- Hallen von 169,5m² bis 303m² im Erdgeschoss
- Bürofläche im Obergeschoss
- Außenfläche nach Vereinbarung
Der Mietbeginn ist verhandelbar. Der Mietzins richtet sich nach Ausbau- bzw. Übergabezustand, Mietbeginn, Vertragslaufzeit und Bonität des Mieters.
Alle Angaben ggf. zzgl. 19% MwSt.
Die...
Preisinformation
5 Stellplätze, Miete je: 35,00 EUR
Nebenkosten pro qm: 2,50 EUR
Weitere Informationen
Stichworte
Stellplatz vorhanden, Nutzfläche: 683,00 m², Gesamtfläche: 683,00 m², Anzahl der separaten WCs: 2, 2 Etagen, Lage im Gewerbegebiet, Zustand nach Vereinbarung
Sonstiges: EDV-Verkabelung
Anbieter der Immobilie
Online-ID: 2det55b
Referenznummer: 7514#2tt845
Finde Angebote wie dieses
Hier geht es zu unserem Impressum, den Allgemeinen Geschäftsbedingungen, den Hinweisen zum Datenschutz und nutzungsbasierter Online-Werbung.