
Herimo Immobilien GmbH & Co. KG
Herr Maximilian Holzmann
083 ···
Nr. anzeigenPreise & Kosten
Kaution
3 Monatsmieten
Provision für Mieter
provisionsfrei
Warum sehe ich diese Anzeige? – Du siehst diese Anzeige basierend auf Ihrer Navigation auf unserer Website und den Suchkriterien, die du verwendet hast.
Lage
Direkt an der Autobahnausfahrt A 93 Regensburg/Süd im V-Markt Pentling. Eine RVV-Haltestelle befindet sich direkt am Objekt.
Die Ladenfläche
Kategorie
Verkaufsfläche
Derzeitige Nutzung
frei
Energie & Heizung
Warum sehe ich diese Anzeige? – Du siehst diese Anzeige basierend auf Ihrer Navigation auf unserer Website und den Suchkriterien, die du verwendet hast.
Weitere Energiedaten
Energieträger
Gas
Details
Objektbeschreibung
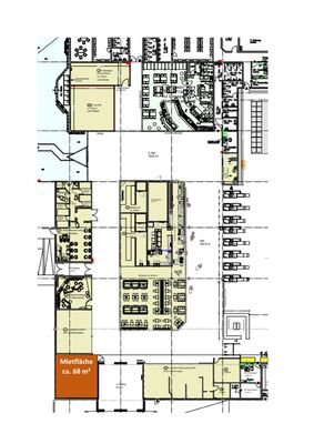
Die Gewerbefläche befindet sich im Mall-Bereich des 2021 eröffneten V-Markt Pentling.
Die Mietfläche kann sowohl über die Mall als auch über einen Außenzugang betreten werden. Die große Fensterfront in der Mall sorgt für gute Sichtbarkeit Ihres Mietobjektes. Bei Bedarf kann der angrenzende Außenbereich genutzt werden. Die...
Weitere Informationen
Mietobjekt
- ca. 68 m²
- provisionsfrei
- sofort frei
- LED Beleuchtung
- 480 kostenlose Parkplätze am Objekt
- hohe Kundenfrequenz
Besichtigungstermine
Nach telefonischer Vereinbarung
Dokumente
Anbieter der Immobilie
Herimo Immobilien GmbH & Co. KG
Am Ring 15, 87665 Mauerstetten
Online-ID: 2dey25d
Finde Angebote wie dieses
Hier geht es zu unserem Impressum, den Allgemeinen Geschäftsbedingungen, den Hinweisen zum Datenschutz und nutzungsbasierter Online-Werbung.