WOHNART Leipzig

Frau Anja Tröger

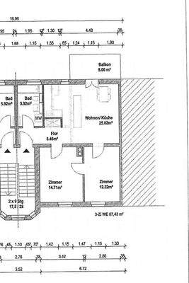
2,5 Zimmerwohnung im 1. Obergeschoss, großer Balkon

€ 488
Kaltmiete zzgl. NK
65 m²
Wohnfläche ca.
2,5
Zimmer

Der Anbieter dieses Objekts hat gegenüber der AVIV Germany GmbH als Betreiber dieses Online-Marktplatzes erklärt, nicht als Unternehmer im Sinne des § 1 KSchG zu handeln. Die im Verbraucherschutzrecht der Union verankerten Verbraucherrechte (insbesondere Informationspflichten und Rücktritts- bzw. Widerrufsrechte) finden auf den Vertrag zwischen dem Anbieter des Objekts und Ihnen (dem Interessenten) keine Anwendung.

Gewerblicher Anbieter

Der Anbieter dieses Objekts hat gegenüber der AVIV Germany GmbH als Betreiber dieses Online-Marktplatzes erklärt, als Unternehmer im Sinne des § 1 KSchG zu handeln.

AdresseWeißenfelser Straße 87
06217 Merseburg 
Auf Karte ansehen

Preise & Kosten

Kaltmiete € 488 Nebenkosten € 195 Warmmiete € 683

Kaution

3 Kaltmieten = 1.464,00 Euro

Lage

Im Süden der Stadt Merseburg gelegen, finden Sie direkt vor der Tür die Haltestelle zur Stadtbahn. In wenigen Minuten sind Sie zudem auf Der Autobahn A38.
Hinter dem Haus liegt eine Kleingartenanlage, eine Minute Fußweg entfert zudem die Schwimmhalle Merseburg.
Eine Kindertagesstätte, sowie die Johannes-Schule...

Mehr anzeigen

Die Wohnung

Bezug

ab sofort

Derzeitige Nutzung

frei

  • Bad mit Fenster und Dusche
  • Balkon
  • offene Küche
  • Böden: Kunststoffboden
  • Fenster: Kunststofffenster

Energie & Heizung

Weitere Energiedaten

Energieträger

Blockheizkraftwerk, Solar

Heizungsart

Zentralheizung

Details

Objektbeschreibung

Objektbeschreibung
Das Objekt wurde komplett renoviert und bietet daher aktuell mehrere Wohnungen im Erstbezug.
Jeder Eingang verfügt über 3 Geschosse.

Raumaufteilung
Vom Treppenhaus gelangen Sie in den Wohnungsflur, von dem alle Räume abgehen.
Das Badezimmer verfügt über eine Dusche und ein Fenster. Die...

Mehr anzeigen

Weitere Informationen

Besichtigungstermine
Wir empfehlen Ihnen, Ihre SCHUFA-Auskunft bereits jetzt zu beantragen, damit Sie diese rechtzeitig erhalten und mit Ihren Bewerberunterlagen einreichen können.

Besichtigungstermine sind jederzeit nach Vereinbarung möglich.

Bitte beachten Sie, dass wir bei einigen Objekten nicht auf jede...

Mehr anzeigen

Anbieter der Immobilie

PartnerDiamond Partner

WOHNART Leipzig

im Durchschnitt  4,30  Sterne
(bei 15 Bewertungen)

Hermundurenstr. 17, 04159 Leipzig

user

Frau Anja Tröger

Dein Ansprechpartner

Anbieter-Website Anbieter-Profil Anbieter-Impressum

Online-ID: 2dh265z

Referenznummer: 9056_87.04

Finde Angebote wie dieses

imageimageimage

Hier geht es zu unserem Impressum, den Allgemeinen Geschäftsbedingungen, den Hinweisen zum Datenschutz und nutzungsbasierter Online-Werbung.