
aiutanda Thüringen GmbH
Team Casemanagement
036 ···
Nr. anzeigenPreise & Kosten
Kaution
3 Monatskaltmieten
Warum sehe ich diese Anzeige? – Du siehst diese Anzeige basierend auf Ihrer Navigation auf unserer Website und den Suchkriterien, die du verwendet hast.
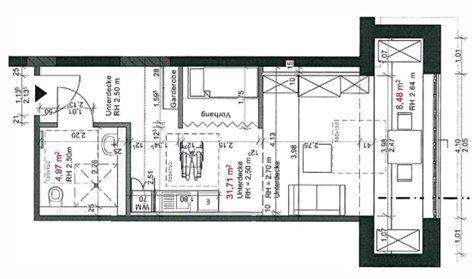
Die Wohnung
Wohnungslage
2. Geschoss
Wohnanlage
Energie & Heizung
Warum sehe ich diese Anzeige? – Du siehst diese Anzeige basierend auf Ihrer Navigation auf unserer Website und den Suchkriterien, die du verwendet hast.
Weitere Energiedaten
Heizungsart
Zentralheizung
Details
Weitere Informationen
Gepflegtes Wohnen & Wohlfühlen
Altersgerechtes, barrierefreies Wohnen für ein selbstbestimmtes Leben mit den benötigten und gewünschten Pflege- und Hilfeleistungen.
- Großzügig gestaltete, helle Gänge mit Handläufen
- Personenaufzug
- barrierefreier Zugang zu allen Räumlichkeiten
- geräumige und...
Anbieter der Immobilie
aiutanda Thüringen GmbH
Peterstr. 5, 99084 Erfurt
Online-ID: 2dksu5v
Referenznummer: HIG WE 2.02
Finde Angebote wie dieses
Weitere Immobilien
Hier geht es zu unserem Impressum, den Allgemeinen Geschäftsbedingungen, den Hinweisen zum Datenschutz und nutzungsbasierter Online-Werbung.