

meyer & partner Immobilien GmbH
Herr Lennart Wermelt
+49 ···
Nr. anzeigenPreise & Kosten
Provision für Käufer
3,57% inkl. MwSt.
Für unsere Vermittlungstätigkeit ist vom Käufer bei Abschluss eines wirksamen Kaufvertrages über diese Immobilie eine Provision in Höhe von 3,57 % (inkl. MwSt.), berechnet vom beurkundeten Kaufpreis, zu zahlen.
Lage
Wollen Sie dem Alltagsstress entfliehen?
In Welver, zwischen den Ortsteilen Klotingen und Flerke, liegt in Sichtweite des 25 ha umfassende Naturschutzgebiete "Hachenbruch" Ihre neue Wohlfühloase.
Den Hof, umgeben von Acker- und Grünlandflächen sowie Wäldern, erreichen Sie ab dem Anliegerweg "Klotinger Heide" nur...
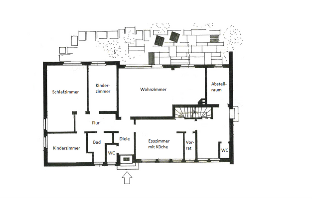
Das Haus
Baujahr
1962
Bezug
nach Vereinbarung
Energie & Heizung
Warum sehe ich diese Anzeige? – Du siehst diese Anzeige basierend auf Ihrer Navigation auf unserer Website und den Suchkriterien, die du verwendet hast.
Energieausweistyp
Bedarfsausweis
Gebäudetyp
Wohngebäude
Baujahr laut Energieausweis
1962
Wesentliche Energieträger
Öl
Gültigkeit
28.05.2021 bis 27.05.2031
Effizienzklasse
G
Endenergiebedarf
219,20 kWh/(m²·a)
Weitere Energiedaten
Energieträger
Öl
Heizungsart
offener Kamin
Details
Objektbeschreibung
DER HOF | IN HERRLICHER ALLEINLAGE
Umgeben von großgewachsenen Birken und einem alten Kastanienbaum befinden sich auf dem Hof ein Wohnhaus sowie zwei Stallgebäude, die früher als Hühner- und Schweinestall genutzt wurden. Für ausreichend Parkraum ist in Form von Stellplätzen und einem Doppelcarport gesorgt.
Das...
Preisinformation
2 Stellplätze
Weitere Informationen
Sonstiges
GEBÄUDE AUF DEM HOF
Ehem. Stallgebäude I ca. 350 m² (Grundfl.)
Ehem. Stallgebäude II ca. 347 m² (Grundfl.)
Carportstellplätze 2
GRUNDSTÜCKSAUFTEILUNG
Wohnen und Betrieb ca. 0,4556 ha
Wirtschaftsweg ca. 0,0926 ha
Ackerland ca. 2,3448 ha
Grünland ca. 0,6017 ha
Gesamtfläche ca...
Anbieter der Immobilie

Online-ID: 2dl6f5l
Referenznummer: 131013765#0QYaP
Finde Angebote wie dieses
Hier geht es zu unserem Impressum, den Allgemeinen Geschäftsbedingungen, den Hinweisen zum Datenschutz und nutzungsbasierter Online-Werbung.