

Büro zur Miete3.500 €
3.500 €
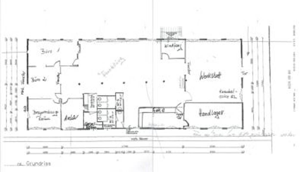
Für verschiedene Zwecke geeignete Büro- / Gewerbefläche - ca. 400 m² - nahe zur A 620
Realisiere Dein Projekt
Bausubstanz und Energie
Der Anbieter hat keine Informationen zum Energieverbrauch bereit gestellt.
- Zustand der Immobilieneuwertig
Mietkosten
Nettomiete zzgl. Nebenkosten
3.500 €
Provision fĂĽr Mieter
Null
Kaution
keine Angabe
Weitere Preisinformationen
Nettokaltmiete: 3.500,00 EUR
Lage

Eschberg, Saarbrücken (66121)
Der Anbieter hat die genaue Adresse nicht freigegeben
Weitere Informationen
Weitere Services
Lust auf eine Besichtigung?
Eine Frage zur Immobilie?
Ăśber den Anbieter
S. M. Immobilien und Vermittlungs GmbHMaklerbĂĽro
Grossherzog-Friedrich-St.39, 66111 SaarbrĂĽcken
6 Jahre Partnerschaft
Herr Walfried BrinkmannDein Kontakt
Online-ID: 2dlsj53
Referenznummer: 4007990
S. M. Immobilien und Vermittlungs GmbH
Bewertung: 2 von 5 Sternen
Wie zufrieden bist du mit dieser Seite (nicht mit der Immobilie selbst)?

