
Aptum Süd
Herr Philipp Hertel
+49 ···
Nr. anzeigenPreise & Kosten
Provision für Mieter
Die Provisionshöhe entnehmen Sie bitte unseren AGB unter:
www.aptumgroup.com/agb
Warum sehe ich diese Anzeige? – Du siehst diese Anzeige basierend auf Ihrer Navigation auf unserer Website und den Suchkriterien, die du verwendet hast.
Lage
Das Objekt liegt im *Stadtteil* der Stadt Nürnberg umgeben von Gewerbe- und Wohnobjekten. Die ruhige und dennoch zentrale Lage bietet Ihnen eine ideale Kombination aus Privatsphäre und Nähe zu allen Annehmlichkeiten des täglichen Lebens. Dank der ausgezeichneten Verkehrsanbindung ist das Objekt sowohl mit dem Auto als auch...
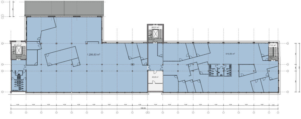
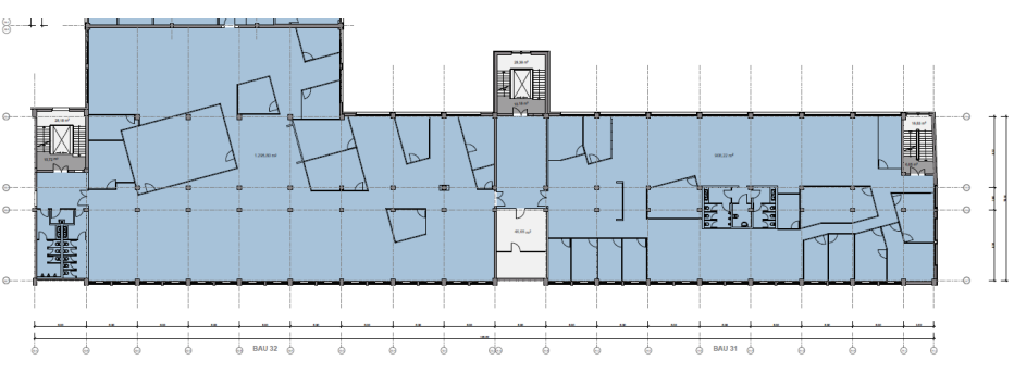
Büro-/Praxisfläche
Kategorie
Bürogebäude
Bezug
nach Vereinbarung
Details
Objektbeschreibung
- Kühlsegel vorhanden
- öffenbare Fenster
- Personen- und Lastenaufzug
- 4m Raumhöhe
- Berücksichtigung individueller Wünsche bezüglich der Raum- und Innenausstattung
Anbieter der Immobilie
Aptum Süd
Ostendstraße 100, 90482 Nürnberg
Online-ID: 2dly25f
Referenznummer: 1230
Finde Angebote wie dieses
Hier geht es zu unserem Impressum, den Allgemeinen Geschäftsbedingungen, den Hinweisen zum Datenschutz und nutzungsbasierter Online-Werbung.