
Dianium Inmo-Concept S.L.
Frau Cornelia Grün
+49 ···
Nr. anzeigenPreise & Kosten
Provision für Käufer
Bitte beachte, das Angebot kann bei Vertragsabschluss die Zahlung einer Provision beinhalten. Weitere Informationen erhältst Du vom Anbieter.
Lage
Kissonerga, gelegen an der Südwestküste Zyperns, ist ein charmantes Dorf, das sowohl historische als auch natürliche Schönheiten bietet. Eingebettet zwischen Paphos und Coral Bay, thront es auf sanften Hügeln, die einen beeindruckenden Blick auf das azurblaue Mittelmeer ermöglichen.
Umgeben von Zitrusplantagen...
Das Haus
Kategorie
Villa
Energie & Heizung
Warum sehe ich diese Anzeige? – Du siehst diese Anzeige basierend auf Ihrer Navigation auf unserer Website und den Suchkriterien, die du verwendet hast.
Weitere Energiedaten
Heizungsart
Fußbodenheizung
Details
Objektbeschreibung
Großartige Villen mit Meerblick in einer sehr schönen und ländlichen Küstenlage im Bezirk Paphos.
Teil eines exklusiven und luxuriösen Projekts mit Villen, Stadthäusern und Wohnungen.
In kurzer Entfernung zu den Sandstränden, zum Stadtzentrum, zum Hafen und vielen weiteren Annehmlichkeiten.
In einer...
Ausstattung
Flughafennähe, Strandnähe, Nahe dem Hafen, Golfplatznähe, Stadtnähe, Panoramablick, Meerblick, Bergblick
Energieklasse A, geschlossene Gemeinschaft, Investitionsmöglichkeit, offene Küche, privater Parkplatz (überdacht), privater Außenbereich, privater Pool, Fußbodenheizung, VRV (Multi-Split-Klimageräte)
Weitere Informationen
Stichworte
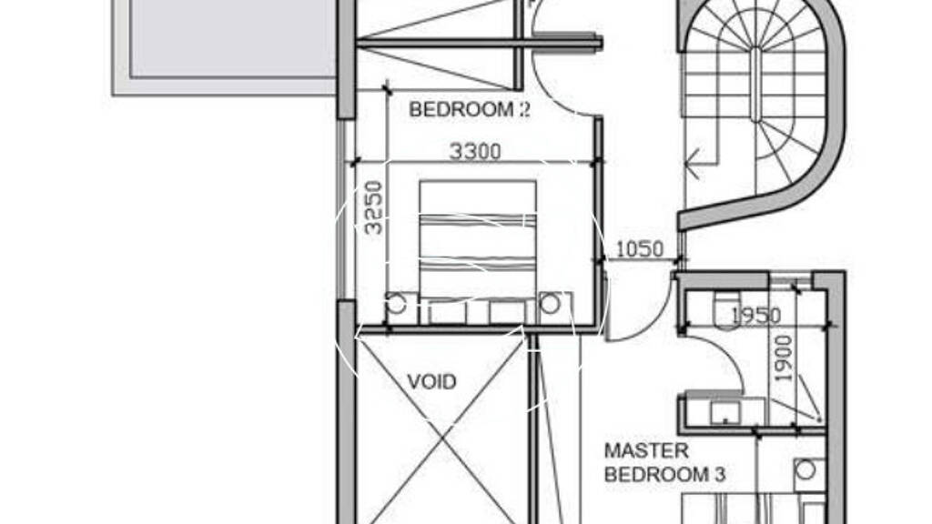
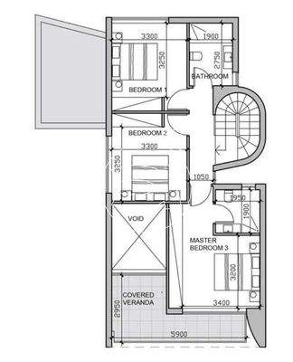
Carport vorhanden, Gesamtfläche: 288,00 m², Anzahl der Schlafzimmer: 3, Anzahl der Badezimmer: 3
Anbieter der Immobilie
Dianium Inmo-Concept S.L.
Avenida Marina Alta 56, 03750 Pedreguer
Online-ID: 2dpen5h
Referenznummer: DIC.12902
Finde Angebote wie dieses
Hier geht es zu unserem Impressum, den Allgemeinen Geschäftsbedingungen, den Hinweisen zum Datenschutz und nutzungsbasierter Online-Werbung.