
Spinnhütte AG
Frau Britta Mesa Raya
0 5 ···
Nr. anzeigenPreise & Kosten
Provision für Mieter
provisionsfrei
Warum sehe ich diese Anzeige? – Du siehst diese Anzeige basierend auf Ihrer Navigation auf unserer Website und den Suchkriterien, die du verwendet hast.
Lage
Die günstige Verkehrsanbindung und zentrale Lage machen Celle zu einem attraktiven Standort. Wichtige nationale und internationale Verkehrswege wie die Autobahnen A2 (E30), A7 (E45) und A27 (E234) sind in unmittelbarer Nähe.
Die Bahn- und S-Bahnanbindungen an den Großraum Hannover (17 Minuten zum ICE-Kreuz Hannover)...
Büro-/Praxisfläche
Kategorie
Bürofläche
Geschoss
Erdgeschoss
Energie & Heizung
Warum sehe ich diese Anzeige? – Du siehst diese Anzeige basierend auf Ihrer Navigation auf unserer Website und den Suchkriterien, die du verwendet hast.
Weitere Energiedaten
Energieträger
Öl
Heizungsart
Zentralheizung
Details
Objektbeschreibung
Objektbeschreibung
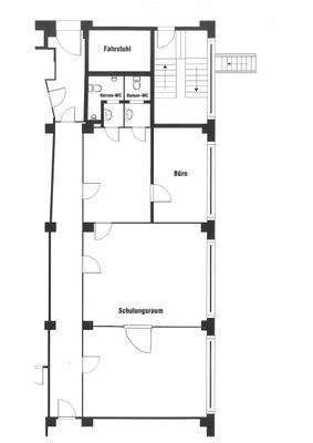
Die Mieteinheit befindet sich in einem Gewerbepark und eignet sich als Büro, Praxis oder Bildungseinrichtung. Der Standort und vor allem das Konzept Gewerbepark Spinnhütte bietet seinen Mietern enorme Vorteile gegenüber anderen Gewerbeansiedlungen dieser Region. Es handelt sich um ein geschlossenes Areal...
Weitere Informationen
Besichtigungstermine
Besichtigungstermine gerne auf Anfrage.
Stichworte
Zustand: renoviert, gepflegt
Sonstiges: Getrennte Damen- und Herren-WCs, frei werdend
Anbieter der Immobilie
Spinnhütte AG
Am Wasserturm 31 B, 29223 Celle
Online-ID: 2dqe25j
Finde Angebote wie dieses
Hier geht es zu unserem Impressum, den Allgemeinen Geschäftsbedingungen, den Hinweisen zum Datenschutz und nutzungsbasierter Online-Werbung.