
Sparkasse Fürth
Frau Jessica Pähler
091 ···
Nr. anzeigenDieses Angebot ist Teil des Neubauprojekts
Das neue JahnCarré in Roßtal - bereits fast fertiggestellt!
Preise & Kosten
Provision für Käufer
provisionsfrei
Lage
Die beliebte Marktgemeinde Roßtal liegt grün eingebettet im Süd-Westen des Landkreises Fürth. In direkter Nachbarschaft befinden sich die Städte Fürth, Nürnberg und Zirndorf sowie der Markt Cadolzburg. Vielfältige Einkaufsmöglichkeiten sowie Ärzte, Apotheken und die Sparkasse befinden sich in fußläufiger Nähe bzw. sind mit...
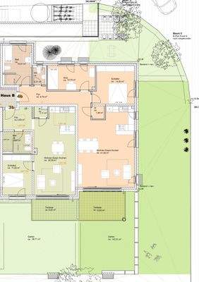
Die Wohnung
Kategorie
Terrassenwohnung
Wohnungslage
Erdgeschoss
Wohnanlage
Das Neubauprojekt
Energie & Heizung
Warum sehe ich diese Anzeige? – Du siehst diese Anzeige basierend auf Ihrer Navigation auf unserer Website und den Suchkriterien, die du verwendet hast.
Energieausweis: für diesen Gebäudetyp nicht notwendig
Weitere Energiedaten
Energieträger
Elektro
Haustyp
KfW 55
Heizungsart
Fußbodenheizung, Luft-/Wasser-Wärmepumpe, Zentralheizung
Details
Objektbeschreibung
Bezahlbarer Wohnraum kombiniert mit moderner
Architektur über den Dächern von Roßtal!
In der beliebten grünen Gemeinde Roßtal entsteht eine exklusive kleine Wohnanlage in der Jahnstraße 2 mit 17 neuen Eigentumswohnungen und Tiefgarage.
Das Projekt besticht durch lichtdurchflutete Räume mit zeitlosem...
Ausstattung
Barrierearme Bauweise nach KfW-55 Standard
Sonnige Terrasse mit eigenem Gartenanteil in Süd-West Ausrichtung
Hochwertige Sanitärausstattung mit bekannten Marken wie Vigour und Hans Grohe
Kunststoffisolierglasfenster 3-fach verglast mit elektrischen Rollläden
Lichtdurchflutetes Wohnraumkonzept mit modernen...
Preisinformation
1 Tiefgaragenstellplatz, Kaufpreis: 24.900,00 EUR
Weitere Informationen
Sonstiges
Alle Angaben über dieses Objekt beruhen auf Informationen des Verkäufers/Vermieters.
Eine Haftung für deren Richtigkeit und Vollständigkeit können wir nicht übernehmen.
Stichworte
Zustand: Erstbezug, neuwertig
Anbieter der Immobilie
Sparkasse Fürth
Maxstraße 32, 90762 Fürth
Online-ID: 2dqwb56
Referenznummer: 1/20/029-029/010562-2A
Finde Angebote wie dieses
Hier geht es zu unserem Impressum, den Allgemeinen Geschäftsbedingungen, den Hinweisen zum Datenschutz und nutzungsbasierter Online-Werbung.