

Gründer Immobilien
Herr Ralf Gründer
049 ···
Nr. anzeigenPreise & Kosten
Provision für Käufer
Bitte beachte, das Angebot kann bei Vertragsabschluss die Zahlung einer Provision beinhalten. Weitere Informationen erhältst Du vom Anbieter.
Das Haus
Kategorie
Bungalow
Baujahr
2024
Bezug
Nach Fertigstellung
Energie & Heizung
Warum sehe ich diese Anzeige? – Du siehst diese Anzeige basierend auf Ihrer Navigation auf unserer Website und den Suchkriterien, die du verwendet hast.
Energieausweistyp
Bedarfsausweis
Gebäudetyp
Wohngebäude
Baujahr laut Energieausweis
2024
Wesentliche Energieträger
Wärmepumpe
Effizienzklasse
A+
Weitere Energiedaten
Haustyp
Massivhaus
Heizungsart
Fußbodenheizung, Luft-/Wasser-Wärmepumpe
Details
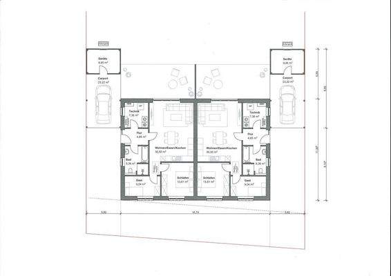
Objektbeschreibung
Provisionsfrei für den Käufer: Dieser exklusive komfortable Neubau Winkelwalmdachbungalow kann auf einem Grundstück ihrer Wahl bzw. auf einem von ihnen zur Verfügung gestellten Grundstück im Emsland oder Ostfriesland erstellt werden. Der Kaufpreis bezieht sich auf das reine Wohnhaus das Grundstück ist nicht im Kaufpreis...
Ausstattung
Bodenbeläge:
Der gesamte Erdgeschossbereich wird mit hochwertigen Domestic-Boden ausgestattet, klasse Optik. Das Badezimmer kann auch nach Wahl mit einer Fliese bestückt werden. Die Fußbodenheizung wird separat von jedem Raum aus geregelt.
Küche:
Der Küchenbereich ist zum Wohn/Esszimmer hin offen gestaltet...
Preisinformation
1 Stellplatz
Weitere Informationen
Stichworte
Carport vorhanden, Anzahl der Schlafzimmer: 2, Anzahl der Badezimmer: 1
Sonstiges/Wohnen: seniorengerechtes Wohnen
Anbieter der Immobilie
Gründer Immobilien
Haupstraße 97, 26892 Dörpen

Online-ID: 2dsba5u
Referenznummer: 8016#CMHriC
Finde Angebote wie dieses
Hier geht es zu unserem Impressum, den Allgemeinen Geschäftsbedingungen, den Hinweisen zum Datenschutz und nutzungsbasierter Online-Werbung.