

Thorn Immobilien
Frau Victoria Hoppe
033 ···
Nr. anzeigenPreise & Kosten
Provision für Mieter
provisionsfrei
Warum sehe ich diese Anzeige? – Du siehst diese Anzeige basierend auf Ihrer Navigation auf unserer Website und den Suchkriterien, die du verwendet hast.
Lage
Mischgebiet
Attraktive Lage am Filmpark Babelsberg - gute Anbindung an den S-Bahnhof, zu Fuß 3 Minuten
Büro-/Praxisfläche
Kategorie
Bürofläche
Baujahr
1996
Details
Objektbeschreibung
Vermietet werden Gewerbeflächen im
- EG links (246,30m²)
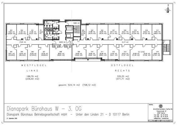
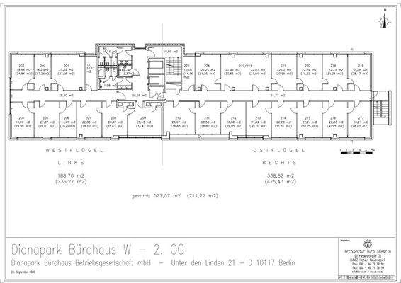
- 2.OG (475,45 + 236,22m²)
- 3.OG links (262,45m²)
Bezug nach Absprache. Teilflächen ab ca. 236m² möglich. Mindestmietzeit 5 Jahre, kürzer auf Anfrage.
Tiefgaragenstellplätze können angemietet werden.
Die Flächen können als gesamte Etage oder als...
Ausstattung
Die Flächen verfügen über ausreichende Verkabelung. Grossraumbüros oder Einzelbüros sind vorhanden. Zugang über Transponder.
Weitere Informationen
Stichworte
Tiefgarage vorhanden, Gesamtfläche: 1.220,42 m², Büroteilfläche: 236,22 m², 4 Etagen, Zustand nach Vereinbarung
Sonstiges: EDV-Verkabelung, Kabelkanäle
Anbieter der Immobilie

Online-ID: 2dtmq5v
Referenznummer: 151
Finde Angebote wie dieses
Hier geht es zu unserem Impressum, den Allgemeinen Geschäftsbedingungen, den Hinweisen zum Datenschutz und nutzungsbasierter Online-Werbung.