
WirtschaftsConsult Beutnagel & Collegen
Herrn Hanno Beutnagel
037 ···
Nr. anzeigenPreise & Kosten
Provision für Käufer
7,14% inkl. MwSt.
Abschreibung/Anlage
Denkmalschutz-Afa
Lage
Weißenfels ist eine Mittelstadt und mit etwa 40.000 Einwohnern die bevölkerungsreichste Stadt im Burgenlandkreis in Sachsen-Anhalt. Zur Stadt Weißenfels kamen 2010 weitere elf Ortsteile hinzu, die bis dahin eigenständige Gemeinden waren.
In Weißenfels kreuzen sich die Bundesstraßen 91, 87 und 176. In Zentrumsnähe ist...
Das Haus
Kategorie
Mehrfamilienhaus
Baujahr
1915
Energie & Heizung
Warum sehe ich diese Anzeige? – Du siehst diese Anzeige basierend auf Ihrer Navigation auf unserer Website und den Suchkriterien, die du verwendet hast.
Energieausweis: für diesen Gebäudetyp nicht notwendig
Details
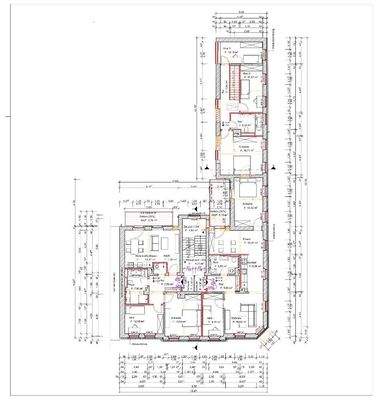
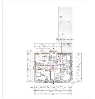
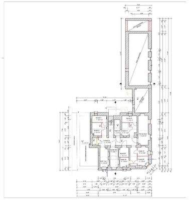
Objektbeschreibung
Baugenehmigung, Abgeschlossenheitsbescheinigung, Tragwerksplanung, Brandschutzkonzept, Grundrissplanung liegen vor
Ausstattung
Das Denkmalobjekt als Mehrfamilienhaus muß komplett kernsaniert werden.
Weitere Informationen
Sonstiges
Wenn Sie eine schnelle Bearbeitung wünschen, geben Sie bitte bei Anfragen Ihren vollständigen Namen, Anschrift, Telefonnummer und E-Mail-Adresse an.
Sie erreichen uns von Mo.-Fr. 9 - 18 Uhr telefonisch (0178 38 36 992).
Auf unserer Homepage www.wirtschaftsconsult.com finden Sie viele hundert...
Anbieter der Immobilie
WirtschaftsConsult Beutnagel & Collegen
Elisenstraße 30, 09111 Chemnitz
Online-ID: 2du3g5g
Referenznummer: 677
Finde Angebote wie dieses
Hier geht es zu unserem Impressum, den Allgemeinen Geschäftsbedingungen, den Hinweisen zum Datenschutz und nutzungsbasierter Online-Werbung.