

T. Siemer Immobilien GmbH
Herr Thorsten Siemer
044 ···
Nr. anzeigenPreise & Kosten
Provision für Käufer
provisionsfrei
Lage
Die Natur als direkter Nachbar, der Ortsteil Galgenmoor der Stadt Cloppenburg hat sich in den vergangenen Jahren zu einem der beliebtesten Wohngegenden der Stadt entwickelt.
Das Galgenmoorgebiet hat einiges zu bieten, neben einer hauptsächlich durch Ein- und Zweifamilienhäusern geprägten Wohnlandschaft die wohl...
Die Wohnung
Wohnungslage
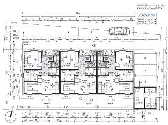
Erdgeschoss
Wohnanlage
Energie & Heizung
Warum sehe ich diese Anzeige? – Du siehst diese Anzeige basierend auf Ihrer Navigation auf unserer Website und den Suchkriterien, die du verwendet hast.
Energieausweistyp
Bedarfsausweis
Gebäudetyp
Wohngebäude
Baujahr laut Energieausweis
2024
Gültigkeit
10.11.2022 bis 01.11.2032
Effizienzklasse
A+
Endenergiebedarf
12,00 kWh/(m²·a)
Weitere Energiedaten
Heizungsart
Fußbodenheizung, Luft-/Wasser-Wärmepumpe
Details
Objektbeschreibung
Moderne, energieeffiziente Bauweise mit Wärmepumpe und einer dezentralen Lüftungsanlage mir Wärmerückgewinnung. Ein zusätzlicher steuerlicher Vorteil ergibt sich durch Einführung der degressiven Abschrebung auf 5 % der Investitionskosten bei Vermietung der Immobilie. Förderprogramme der KFW (Kredit Nr. 297, 298) sind...
Ausstattung
Wohnung 1 (EG rechts):
Diele, Bad, HWR, Abstellraum, Wohnen / Essen, Schlafzimmer, Terrasse. Ca. 58,47 m² Wohnfläche.
Abstellraum außen, Gemeinschaftsraum Fahrrad. Kfz-Stellplatz. Technikraum.
Auszug aus der Baubeschreibung
- II-geschossige Bauweise, Flachdach
- KfZ-Stellplatz
- Treppenanlage mit...
Preisinformation
Baujahr: 2024
Courtage: provisionsfrei
Wohnfläche: 58,47 m², 1 Stellplatz
Weitere Informationen
Sonstiges
Alle Angaben entstammen den Übermittlungen der Eigentümer oder dritten Personen und werden von uns sorgfältig überprüft. Dennoch kann für die absolute Genauigkeit keine Gewährleistung übernommen werden. Wünschen Sie mehr Informationen oder die Zusendung eines Exposés, dann rufen Sie uns einfach an, oder...
Anbieter der Immobilie
T. Siemer Immobilien GmbH
Hagenstraße 17A, 49661 Cloppenburg

Online-ID: 2due65b
Referenznummer: 1224-3005
Finde Angebote wie dieses
Hier geht es zu unserem Impressum, den Allgemeinen Geschäftsbedingungen, den Hinweisen zum Datenschutz und nutzungsbasierter Online-Werbung.