

Wohnung zum Kauf275000 €2.604 €/m²4 Zimmer • 105,6 m² • 2. Geschoss
275000 €
2.604 €/m²
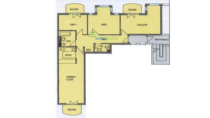
4 Zimmer • 105,6 m² • 2. Geschoss
In ruhiger, grüner Lage - 4-Raum-Wohnung, Badewanne, Gäste-WC, 3 Balkone, TG-Stellplatz
Merkmale
- Bezug: nach Absprache
- vermietet
- 2. Geschoss
- Kelleranteil
- Stellplatz
- Gäste-WC
- Balkon
Realisiere Dein Projekt
Bausubstanz und Energie
Energieausweis
D
- Baujahr1994
- Zustand der ImmobilieMassivhaus, neuwertig
- HeizungsartZentralheizung
- EnergieträgerGas
Preisdetails
Kaufpreis
275000 €
2.604,17 €/m²
Hausgeld
376 €
Provision für Käufer
3,57 % inkl. MwSt.
Der Käufer verpflichtet sich im Falle des Erwerbs des vorstehenden Objektes die Kosten des Kaufs an die Firma Wohndealer Immobilien GmbH & Co. Weitere Informationen siehe Provisionshinweis.
Der Käufer verpflichtet sich im Falle des Erwerbs des vorstehenden Objektes die Kosten des Kaufs an die Firma Wohndealer Immobilien GmbH & Co. Weitere Informationen siehe Provisionshinweis.
Weitere Preisinformationen
Soll-Mieteinnahmen pro Jahr: 11.040,00 EUR
Ist-Mieteinnahmen pro Jahr: 11.040,00 EUR
Ist-Mieteinnahmen pro Jahr: 11.040,00 EUR
Geschätzte Gesamtkosten
305.442 €1
Kaufpreis
275.000 €
Kaufnebenkosten
30.442 €
2Notarkosten (1,5%)
4.125 €
Grunderwerbsteuer (5,5%)
15.125 €
Provision für Käufer (3,57%)
9.817 €
Grundbucheintrag (0,5%)
1.375 €
1Der angezeigte Wert ist eine automatisch berechnete Schätzung von immowelt.
2Bei den Angaben handelt es sich um ortsübliche Werte. Individuelle Kosten können abweichen.
Lage

Liebertwolkwitz, Leipzig (04288)
Der Anbieter hat die genaue Adresse nicht freigegeben
Weitere Informationen
Weitere Services
Lust auf eine Besichtigung?
Eine Frage zur Immobilie?
Ăśber den Anbieter
Wohndealer Immobilien GmbH & Co. KGMaklerbĂĽro
Gustav-Adolf-StraĂźe 38a, 04105 Leipzig
Partnerschaft

Herr Sebastian HunoldDein Kontakt
Weitere Unterlagen
Online-ID: 2dvj65u
Referenznummer: 1001-4-055-001


Wohndealer Immobilien GmbH & Co. KG
Bewertung: 4,4 von 5 Sternen
Wie zufrieden bist du mit dieser Seite (nicht mit der Immobilie selbst)?

