massa haus - Wolfgang Mertins

Herrn Wolfgang Mertins

Kontaktiere den Anbieter schriftlich, es ist keine Telefonnummer hinterlegt.

Doppelhaushälfte in Tülau - Auf Wunsch schlüsselfertig - Neubauförderung QNG möglich - Bauen mit massa Haus

€ 293.650
Kaufpreis
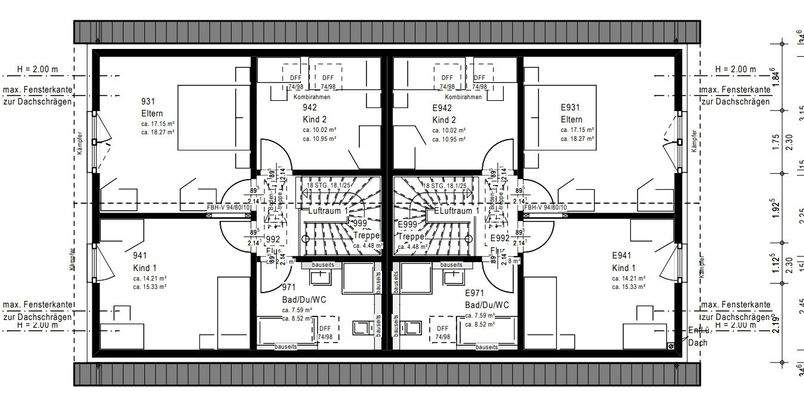
134 m²
Wohnfläche ca.
4
Zimmer
340 m²
Grundstücksfl. ca.

Der Anbieter dieses Objekts hat gegenüber der AVIV Germany GmbH als Betreiber dieses Online-Marktplatzes erklärt, nicht als Unternehmer im Sinne des § 1 KSchG zu handeln. Die im Verbraucherschutzrecht der Union verankerten Verbraucherrechte (insbesondere Informationspflichten und Rücktritts- bzw. Widerrufsrechte) finden auf den Vertrag zwischen dem Anbieter des Objekts und Ihnen (dem Interessenten) keine Anwendung.

Provisionsfrei
Gewerblicher Anbieter

Der Anbieter dieses Objekts hat gegenüber der AVIV Germany GmbH als Betreiber dieses Online-Marktplatzes erklärt, als Unternehmer im Sinne des § 1 KSchG zu handeln.

AdresseStraße nicht freigegeben
38474 Tülau 
(Tülau-Fahrenhorst)
Auf Karte ansehen

Preise & Kosten

Kaufpreis € 293.650

Provision für Käufer

provisionsfrei

Lage

Dieses Angebot bezieht sich auf ein mögliches Baugrundstück in der Gemeinde Tülau.

Sollte Ihnen das Grundstück oder die Lage nicht zusagen, helfen wir Ihnen gerne und kostenfrei, ein passendes Baugrundstück in der gewünschten Region zu finden.

Alternativ prüfen wir auch völlig kostenfrei innerhalb von 48...

Mehr anzeigen

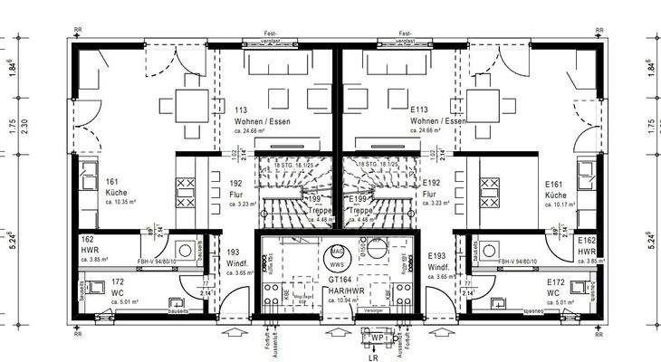
Das Haus

Kategorie

Doppelhaushälfte

Geschosse

2 Geschosse

Baujahr

2026

Bezug

2026

Derzeitige Nutzung

frei

  • Zustand: Neubau
  • nicht unterkellert
  • Terrasse, Garten, Gartenanteil
  • 2 Stellplätze
  • Bad mit Fenster, Wanne und Dusche, Gäste-WC, Bad/WC getrennt
  • Böden: Estrich
  • Fenster: Kunststofffenster
  • Anschlüsse: Kabelanschluss
  • Weitere Räume: Abstellraum
  • barrierefrei, rollstuhlgerecht
  • kontrollierte Be- und Entlüftungsanlage

Energie & Heizung

Weitere Energiedaten

Haustyp

Fertighaus, KfW 40

Heizungsart

Fußbodenheizung, Luft-/Wasser-Wärmepumpe

Details

Objektbeschreibung

Im Kaufpreis enthalten sind das Baugrundstück, diese Doppelhaushälfte in KfW 40 Ausführung mit Photovoltaikanlage, die Bodenplatte inkl. Bodengutachten, die Kompaktanlage Luft-Wasser-Wärmepumpe, eine kontrollierte Be- und Entlüftungsanlage mit Wärmerückgewinnung, die Innentreppe, das Material für die Dämmung und Beplankung...

Mehr anzeigen

Weitere Informationen

Wohnen in Wolfsburg
-Starten Sie jetzt für 2026 durch
-Welche Förderung passt zu mir?
-Wie kann ich beim Hausbau Geld sparen?
-Vorteil Eigenleistung

Warum Miete bezahlen wenn Hausbau so einfach ist?

- Kostenloser Grundstücksservice
- Kostenlose Finanzierungberatung
- Grundrissgestaltung...

Mehr anzeigen

Anbieter der Immobilie

Partner

massa haus - Wolfgang Mertins

Hauptstr. 39a, 38476 Barwedel

user

Herrn Wolfgang Mertins

Dein Ansprechpartner

Kontaktiere den Anbieter schriftlich, es ist keine Telefonnummer hinterlegt.

Anbieter-Website Anbieter-Profil Anbieter-Impressum

Online-ID: 2dwm75f

Finde Angebote wie dieses

imageimageimage

Hier geht es zu unserem Impressum, den Allgemeinen Geschäftsbedingungen, den Hinweisen zum Datenschutz und nutzungsbasierter Online-Werbung.