


1 / 15



1 / 15
Studio zum Kauf362250 €362.250 €1.320 €/m²3 Zimmer • 274,5 m²
362250 €362.250 €
1.320 €/m²
3 Zimmer • 274,5 m²
Dreizimmerwohnung im Gravity Homes & Living-Komplex, Kambanite-Gebiet
Realisiere Dein Projekt
Bausubstanz und Energie
Der Anbieter hat keine Informationen zu Energieverbrauch oder Zustand der Immobilie bereit gestellt.
Preisdetails
Kaufpreis
362250 €362.250 €
1.319,86 €/m²
Provision für Käufer
Bitte beachte, das Angebot kann bei Vertragsabschluss die Zahlung einer Provision beinhalten. Weitere Informationen erhältst Du vom Anbieter.
Lage

Sofia

Die Karte ist nicht verfĂĽgbar.
Weitere Informationen
Sonstiges
Wir bieten zum Verkauf eine erstklassige Dreizimmerwohnung im Gravity Homes & Living-Komplex im Kambanite-Gebiet an.
Gravity Homes & Living ? ein beeindruckender neuer Komplex mit einem Konzept für eine andere Umgebung am Fuße des Vitosha, in dessen Idee die Philosophie des intelligenten, nachhaltigen und sicheren Wohnens steckt. Hier ist Ihr Zuhause auf höchstem Niveau geschützt, jeder erdenkliche Service steht Ihnen zur Verfügung und jede Outdoor-Aktivität hat ihren besonderen Platz.
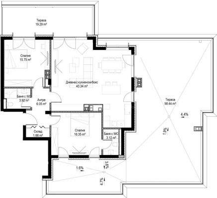
Die Wohnung #B1-A7 befindet sich im dritten Stock und hat eine Gesamtfläche von 274,46 qm.
Verteilung:
Halle, Lager;
Schlafzimmer mit Bad/WC;
ein weiteres Badezimmer mit separater Toilette;
zweites Schlafzimmer mit Zugang zu einer Terrasse;
Wohnzimmer mit KĂĽche und Esszimmer ? 43,34 qm mit Zugang zu zwei Terrassen;
zwei Terrassen - von 19,29 qm und 98,44 qm.
Die Wohnungen des Komplexes werden gemäß BDS mit einer Option auf bis zu 4 Optionen für die Fertigstellung der Immobilien durch das internationale Architektur- und Designunternehmen SGI vermietet.
Alle Wohnungen zeichnen sich durch großzügige und helle Räume, günstige Belichtungen und funktionale Grundrisse aus.
Es besteht die Möglichkeit, Garagen für die Wohnungen zu erwerben.
Standort
Gravity bietet einen 360-Grad-Blick auf den Berg und die Stadt.
Gravity befindet sich in günstiger Lage in der zunehmend bevorzugten und prestigeträchtigen Gegend ?Kambanite?, angrenzend an einen der gefragtesten geschlossenen Komplexe der Hauptstadt, und ist die letzte Gelegenheit, ein Projekt ähnlicher Größenordnung in dieser Gegend zu bauen. Der Komplex verkörpert ein friedliches Leben in einer malerischen Umgebung mit frischer Luft auf einer Gesamtfläche von 110.000 m², davon 92.000 m² Grünfläche, sowie 10 Hektar eigenem Park.
20 Autominuten vom Zentrum der Hauptstadt entfernt, in der Nähe von zwei der großen Geschäftszentren ? Business Park Sofia und Garitage Office Park ? ist Gravity ein exklusiver Wohnort für Erwachsene und Kinder.
zum Bell Park;
3 Autominuten von der RingstraĂźe entfernt;
6 Autominuten vom Ring Mall entfernt;
15 Minuten mit dem Auto vom Flughafen entfernt.
Der Bau der ersten Etappe, einschlieĂźlich der gesamten geplanten Parkumgebung, begann am 12.2023.
Fertigstellungszeitraum - 2,5 Jahre, PZP auf Stufe 1 - 21.000 qm:
drei dreigeschossige Gebäude mit Wohnungen ? Dreizimmerwohnungen in den Obergeschossen und Vierzimmerwohnungen, mit Garten oder Terrassen;
Reihenhäuser und Doppelhäuser mit einer Fläche von 285 qm bis 454 qm.
Freizeitgebäude ? öffentliches Gebäude mit 40 Parkplätzen für Gäste ? 2.400 m².
Wohnanlage der neuen Generation:
Fertige Häuser für ein intelligentes Zuhause ? Smart Home System;
Französische Fenster und hohe Decken 3+ m Licht;
innovatives Wärmedämmsystem;
Wärmepumpen-Heizsystem;
Möglichkeit für individuelle Aufzüge und Pool für die Häuser;
Photovoltaik mit Wechselrichteranlagen;
groĂźformatige Aluminiumschreinerei mit Dreifachverglasung und niedrigem Rand;
Kläranlage;
integrierte Ladestationen fĂĽr Elektrofahrzeuge;
moderne intelligente Sicherheitstechnologien von VIP Security;
Facility-Management-Dienstleistungen fĂĽr den Komplex.
Vielfältige Annehmlichkeiten für die ganze Familie, Erholung und Sport sowie Ihr erfolgreiches Business:
24-Stunden-Rezeption;
Fitness- und Spa-Center, Yoga-Studio, Boxhalle;
Grill- und Picknickplätze, Haustierpark, Outdoor-Fitness, Jogging-, Rad- und Sportwege;
Sommerkino;
Sportplätze, Spielplätze und Kinderzentrum;
5-Sterne-Hotel-Loungebereich mit Rezeption und Restaurants;
Kino und Spielzimmer;
Konferenzräume und ein offener Bereich für Arbeit und Besprechungen (Co-Working-Space) usw.
Für weitere Informationen und die Vereinbarung einer Besichtigung wenden Sie sich bitte an den für das Angebot zuständigen Makler.
Besichtigungen
Wir können eine Besichtigung der Immobilie zu einer für Sie passenden Zeit vereinbaren. Bitte kontaktieren Sie den für dieses Angebot zuständigen Makler und teilen Sie ihm die von Ihnen gewünschte Uhrzeit mit.
Reservierung der Immobilie
Gegen eine nicht erstattete Anzahlung in Höhe von 2.000 Euro wird die Immobilie reserviert. Weitere Besichtigungen mit anderen Käufern finden nicht statt und Makler beginnt mit der Vorbereitung der Dokumente für den Abschluss des endgültigen Vertrags für Eigentumsübertragung. Bitte kontaktieren Sie den zuständigen Makler für mehr Information über den Kauf einer Immobilie und Zahlungsarten.
Zusatzleistungen und Kundendienst
Wir sind ein seriöses Unternehmen und werden nicht nur während des Kaufs, sondern auch danach bei Ihnen sein und Ihnen auf Ihren Wunsch zusätzliche Dienstleistungen anbieten, um die neu gekaufte Immobilie vollständig und nahtlos zu nutzen. Die Dienstleistungen, die wir anbieten können, umfassen die Erlangung einer Hypothekengenehmigung, eine Versicherung für bewegliche und unbewegliche Sachen, eine Lebensversicherung, eine Kranken- und Autoversicherung, Bau- und Reparaturaktivitäten, Möbel, Rechts- und Buchhaltungsdienstleistungen usw.
Bei uns können Sie nicht nur eine Immobilie mieten, sondern auch eine Reihe von Zusatzleistungen in Anspruch nehmen. Wir können Versicherungen für bewegliches und unbewegliches Vermögen, Lebensversicherungen, Kranken- und Kfz-Versicherungen, Bau- und Reparaturarbeiten, Möbel, Rechts- und Buchhaltungsdienstleistungen usw. anbieten.
Stichworte Lage im Bau: rechts vorne
Gravity Homes & Living ? ein beeindruckender neuer Komplex mit einem Konzept für eine andere Umgebung am Fuße des Vitosha, in dessen Idee die Philosophie des intelligenten, nachhaltigen und sicheren Wohnens steckt. Hier ist Ihr Zuhause auf höchstem Niveau geschützt, jeder erdenkliche Service steht Ihnen zur Verfügung und jede Outdoor-Aktivität hat ihren besonderen Platz.
Die Wohnung #B1-A7 befindet sich im dritten Stock und hat eine Gesamtfläche von 274,46 qm.
Verteilung:
Halle, Lager;
Schlafzimmer mit Bad/WC;
ein weiteres Badezimmer mit separater Toilette;
zweites Schlafzimmer mit Zugang zu einer Terrasse;
Wohnzimmer mit KĂĽche und Esszimmer ? 43,34 qm mit Zugang zu zwei Terrassen;
zwei Terrassen - von 19,29 qm und 98,44 qm.
Die Wohnungen des Komplexes werden gemäß BDS mit einer Option auf bis zu 4 Optionen für die Fertigstellung der Immobilien durch das internationale Architektur- und Designunternehmen SGI vermietet.
Alle Wohnungen zeichnen sich durch großzügige und helle Räume, günstige Belichtungen und funktionale Grundrisse aus.
Es besteht die Möglichkeit, Garagen für die Wohnungen zu erwerben.
Standort
Gravity bietet einen 360-Grad-Blick auf den Berg und die Stadt.
Gravity befindet sich in günstiger Lage in der zunehmend bevorzugten und prestigeträchtigen Gegend ?Kambanite?, angrenzend an einen der gefragtesten geschlossenen Komplexe der Hauptstadt, und ist die letzte Gelegenheit, ein Projekt ähnlicher Größenordnung in dieser Gegend zu bauen. Der Komplex verkörpert ein friedliches Leben in einer malerischen Umgebung mit frischer Luft auf einer Gesamtfläche von 110.000 m², davon 92.000 m² Grünfläche, sowie 10 Hektar eigenem Park.
20 Autominuten vom Zentrum der Hauptstadt entfernt, in der Nähe von zwei der großen Geschäftszentren ? Business Park Sofia und Garitage Office Park ? ist Gravity ein exklusiver Wohnort für Erwachsene und Kinder.
zum Bell Park;
3 Autominuten von der RingstraĂźe entfernt;
6 Autominuten vom Ring Mall entfernt;
15 Minuten mit dem Auto vom Flughafen entfernt.
Der Bau der ersten Etappe, einschlieĂźlich der gesamten geplanten Parkumgebung, begann am 12.2023.
Fertigstellungszeitraum - 2,5 Jahre, PZP auf Stufe 1 - 21.000 qm:
drei dreigeschossige Gebäude mit Wohnungen ? Dreizimmerwohnungen in den Obergeschossen und Vierzimmerwohnungen, mit Garten oder Terrassen;
Reihenhäuser und Doppelhäuser mit einer Fläche von 285 qm bis 454 qm.
Freizeitgebäude ? öffentliches Gebäude mit 40 Parkplätzen für Gäste ? 2.400 m².
Wohnanlage der neuen Generation:
Fertige Häuser für ein intelligentes Zuhause ? Smart Home System;
Französische Fenster und hohe Decken 3+ m Licht;
innovatives Wärmedämmsystem;
Wärmepumpen-Heizsystem;
Möglichkeit für individuelle Aufzüge und Pool für die Häuser;
Photovoltaik mit Wechselrichteranlagen;
groĂźformatige Aluminiumschreinerei mit Dreifachverglasung und niedrigem Rand;
Kläranlage;
integrierte Ladestationen fĂĽr Elektrofahrzeuge;
moderne intelligente Sicherheitstechnologien von VIP Security;
Facility-Management-Dienstleistungen fĂĽr den Komplex.
Vielfältige Annehmlichkeiten für die ganze Familie, Erholung und Sport sowie Ihr erfolgreiches Business:
24-Stunden-Rezeption;
Fitness- und Spa-Center, Yoga-Studio, Boxhalle;
Grill- und Picknickplätze, Haustierpark, Outdoor-Fitness, Jogging-, Rad- und Sportwege;
Sommerkino;
Sportplätze, Spielplätze und Kinderzentrum;
5-Sterne-Hotel-Loungebereich mit Rezeption und Restaurants;
Kino und Spielzimmer;
Konferenzräume und ein offener Bereich für Arbeit und Besprechungen (Co-Working-Space) usw.
Für weitere Informationen und die Vereinbarung einer Besichtigung wenden Sie sich bitte an den für das Angebot zuständigen Makler.
Besichtigungen
Wir können eine Besichtigung der Immobilie zu einer für Sie passenden Zeit vereinbaren. Bitte kontaktieren Sie den für dieses Angebot zuständigen Makler und teilen Sie ihm die von Ihnen gewünschte Uhrzeit mit.
Reservierung der Immobilie
Gegen eine nicht erstattete Anzahlung in Höhe von 2.000 Euro wird die Immobilie reserviert. Weitere Besichtigungen mit anderen Käufern finden nicht statt und Makler beginnt mit der Vorbereitung der Dokumente für den Abschluss des endgültigen Vertrags für Eigentumsübertragung. Bitte kontaktieren Sie den zuständigen Makler für mehr Information über den Kauf einer Immobilie und Zahlungsarten.
Zusatzleistungen und Kundendienst
Wir sind ein seriöses Unternehmen und werden nicht nur während des Kaufs, sondern auch danach bei Ihnen sein und Ihnen auf Ihren Wunsch zusätzliche Dienstleistungen anbieten, um die neu gekaufte Immobilie vollständig und nahtlos zu nutzen. Die Dienstleistungen, die wir anbieten können, umfassen die Erlangung einer Hypothekengenehmigung, eine Versicherung für bewegliche und unbewegliche Sachen, eine Lebensversicherung, eine Kranken- und Autoversicherung, Bau- und Reparaturaktivitäten, Möbel, Rechts- und Buchhaltungsdienstleistungen usw.
Bei uns können Sie nicht nur eine Immobilie mieten, sondern auch eine Reihe von Zusatzleistungen in Anspruch nehmen. Wir können Versicherungen für bewegliches und unbewegliches Vermögen, Lebensversicherungen, Kranken- und Kfz-Versicherungen, Bau- und Reparaturarbeiten, Möbel, Rechts- und Buchhaltungsdienstleistungen usw. anbieten.
Stichworte Lage im Bau: rechts vorne
Weitere Services
Lust auf eine Besichtigung?
Eine Frage zur Immobilie?
Ăśber den Anbieter
Suprimmo AGMaklerbĂĽro
Cherni Vrah Blvd. Nr. 51, 1407 SOFIA
Partnerschaft

Frau Adriana NikolovaDein Kontakt
Online-ID: 2dwsu56
Referenznummer: IMW-118357


Suprimmo AG
5/5Bewertung: 5 von 5 Sternen
Wie zufrieden bist du mit dieser Seite (nicht mit der Immobilie selbst)?