

J&P Immobilienmakler GmbH
Frau Kathrin Fercher
+43 ···
Nr. anzeigenPreise & Kosten
inkl. Betriebskosten
Kaution
3-6 MM
Provision für Mieter
3 BMM
Warum sehe ich diese Anzeige? – Du siehst diese Anzeige basierend auf Ihrer Navigation auf unserer Website und den Suchkriterien, die du verwendet hast.
Büro-/Praxisfläche
Kategorie
Bürofläche
Bezug
nach Vereinbarung
Energie & Heizung
Warum sehe ich diese Anzeige? – Du siehst diese Anzeige basierend auf Ihrer Navigation auf unserer Website und den Suchkriterien, die du verwendet hast.
Heizwärmebedarf (HWB)
37,00 kWh/(m²·a)
Details
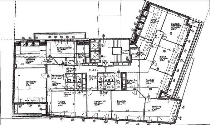
Objektbeschreibung
Allgemeine Objektübersicht:
An der belebten U1-Station Reumannplatz erwartet Sie ein herausragendes Büro im Herzen von Favoriten, das Komfort und Funktionalität vereint. Mit großzügigen 423 m² Nutzfläche und zusätzlichen 13,6 m² Terrassen ist dieses barrierefreie Objekt perfekt für Unternehmen, die eine zentrale und...
Preisinformation
Nettokaltmiete: 6.500,00 EUR
Weitere Informationen
Stichworte
Anzahl der separaten WCs: 4, Anzahl Terrassen: 3, Wohnungsnr.: 15+16
Anbieter der Immobilie
J&P Immobilienmakler GmbH
Lehargasse 7, 1060 WIEN

Online-ID: 2dxcf5x
Referenznummer: 101/13255
Finde Angebote wie dieses
Hier geht es zu unserem Impressum, den Allgemeinen Geschäftsbedingungen, den Hinweisen zum Datenschutz und nutzungsbasierter Online-Werbung.