

Dahler Bremen
Herr Philipp Hirsch
015 ···
Nr. anzeigenPreise & Kosten
Provision für Käufer
3,57% inkl. der gesetzlichen MwSt. bezogen auf den Kaufpreis
Lage
_dieses repräsentative Einfamilienhaus befindet sich in idyllischer Lage
_am Ortsrand von Morsum
_der Ort gehört zur Samtgemeinde Thedinghausen
_ein circa 3000 Einwohner-Dorf
_zahlreiche landwirtschaftlich genutzte Flächen, Bauern- und Reiterhöfe
_die Bebauung besteht überwiegend aus Einfamilien- und...
Das Haus
Kategorie
Einfamilienhaus
Baujahr
1928
Energie & Heizung
Warum sehe ich diese Anzeige? – Du siehst diese Anzeige basierend auf Ihrer Navigation auf unserer Website und den Suchkriterien, die du verwendet hast.
Energieausweistyp
Bedarfsausweis
Gebäudetyp
Wohngebäude
Baujahr laut Energieausweis
1999
Wesentliche Energieträger
OEL
Gültigkeit
bis 27.02.2034
Effizienzklasse
E
Endenergiebedarf
152,80 kWh/(m²·a)
Weitere Energiedaten
Heizungsart
Fußbodenheizung, offener Kamin, Zentralheizung
Details
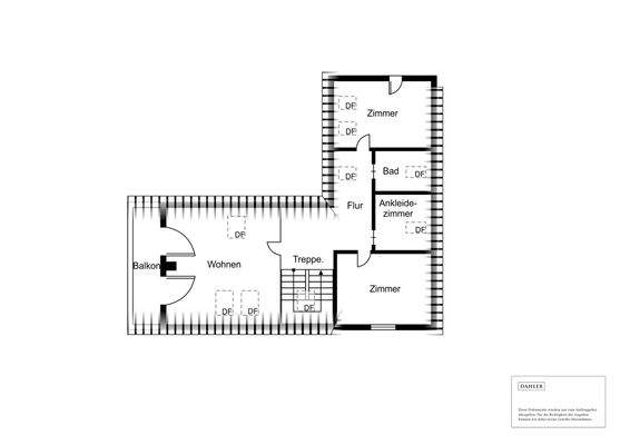
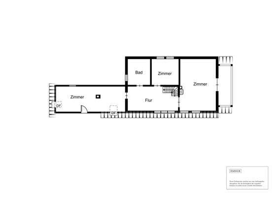
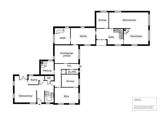
Objektbeschreibung
Bereits beim Befahren der 50m langen Auffahrt, lässt sich das Potenzial, dieses parkähnlichen 8500 m² großen Grundstücks samt seiner Immobilie vermuten. Das Landhaus befindet sich am Stadtrand von Morsum und bietet auf insgesamt 484 m² Wohnfläche einen selbst zu gestaltenden Wohlfühlort. Die Gesamtwohnfläche verteilt sich auf...
Ausstattung
_Landhaus aus dem Baujahr 1929
_1980 wurde das Objekt saniert
_2000 dann teilrenoviert
_Cirka 8500 m² parkähnliches Grundstück
_Cirka 484 m² Wohnfläche verteilt auf das Haupt- und Nebenhaus, welche miteinander verbunden sind
_Fußbodenheizung im Erdgeschoss
_Offener Kamin so wie Kaminofen
_Hochwertige...
Preisinformation
3 Garagenstellplätze
Weitere Informationen
Sonstiges
Haben wir Ihr Interesse geweckt?
Dann melden Sie sich gerne bei uns!
Ansprechpartner:
Philipp Hirsch
Tel.: 0151 745 163 05
Ich freue mich auf Sie!
Unsere Objektangaben basieren auf den uns erteilten Informationen. Der Ist- Zustand der Grundrisse kann vom Plan- Zustand...
Anbieter der Immobilie
Dahler Bremen
Marcusallee 7a, 28359 Bremen

Online-ID: 2dxdd5r
Referenznummer: DC-BRE545
Finde Angebote wie dieses
Hier geht es zu unserem Impressum, den Allgemeinen Geschäftsbedingungen, den Hinweisen zum Datenschutz und nutzungsbasierter Online-Werbung.