

Dobbertin Group Real Estate & Project GmbH
Herr Norman Dobbertin
+49 ···
Nr. anzeigenDieses Angebot ist Teil des Neubauprojekts
„GEMACHT UM ZU BLEIBEN." - Vollendete Wohnwerte mit Komfort & Klasse an der Nordseeküste
Preise & Kosten
Provision für Käufer
provisionsfrei
Lage
"MOIN, MOIN"
Willkommen in Marne, einer ca. 6.000 Einwohner großen und bezaubernden Stadt in Schleswig-Holstein. Gelegen im Herzen der Region Dithmarschen, eingebettet zwischen malerischen Feldern und grünen Wiesen, bietet Marne eine ruhige und entspannte Atmosphäre, die zum Verweilen einlädt. Die Heimat der...
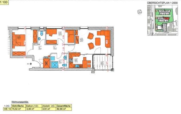
Die Wohnung
Wohnungslage
1. Geschoss (Erdgeschoss)
Bezug
-
Wohnanlage
Das Neubauprojekt
Energie & Heizung
Warum sehe ich diese Anzeige? – Du siehst diese Anzeige basierend auf Ihrer Navigation auf unserer Website und den Suchkriterien, die du verwendet hast.
Gebäudetyp
Wohngebäude
Weitere Energiedaten
Heizungsart
Fußbodenheizung, Luft-/Wasser-Wärmepumpe, Zentralheizung
Details
Ausstattung
"BIS INS DETAIL"
Konkret lebt es sich im Marner Wohnprojekt in abgestimmten und zeitgemäßen Eigentumswohnungen. Lassen Sie sich von der nachhaltigen und zeitlosmodernen Architektur, einer ausgewählten und umfangreichen Ausstattung und der großzügigen, barrierearmen sowie zum Teil auch barrierefreien...
Weitere Informationen
Das Projekt
Wir freuen uns Ihnen unser neuestes Wohnungsbauprojekt vorstellen zu dürfen, dass umfangreichen Komfort und zeitloses Design vereint.
Unsere 3 modernen und auf hohem Niveau konzipierten Mehrfamilienhäuser mit insgesamt 29 barrierearmen (z.T. barrierefrei) Wohneinheiten inkl. Tiefgarage, auf einem ca...
Dokumente
Anbieter der Immobilie

Online-ID: 2dxlf5w
Referenznummer: 19
Finde Angebote wie dieses
Hier geht es zu unserem Impressum, den Allgemeinen Geschäftsbedingungen, den Hinweisen zum Datenschutz und nutzungsbasierter Online-Werbung.