

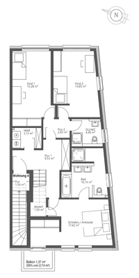
Maisonette zum Kauf1614000 €10.980 €/m²4 Zimmer • 147 m²
1614000 €
10.980 €/m²
4 Zimmer • 147 m²
Großzügige 147-m²-Eigentumswohnung in nachgefragter Lage
Merkmale
- Dachgeschoss
- EinbaukĂĽche, offene KĂĽche
- Kelleranteil
- AuĂźen-Stellplatz
- Gäste-WC
- Balkon
- Terrasse
- DSL-Anschluss
Realisiere Dein Projekt
Bausubstanz und Energie
Der Anbieter hat keine Informationen zum Energieverbrauch bereit gestellt.
- Zustand der ImmobilieProjektiert
- HaustypKfW 55
- EnergieträgerElektro, Luft-/Wasser-Wärmepumpe
Preisdetails
Kaufpreis
1614000 €
10.979,50 €/m²
Preis pro Stellplatz
55000 €
Provision für Käufer
2,38 % incl. MwSt.
Geschätzte Gesamtkosten
1.773.463 €1
Kaufpreis
1.614.000 €
Kaufnebenkosten
159.463 €
2Notarkosten (1,5%)
24.210 €
Grunderwerbsteuer (5,5%)
88.770 €
Provision für Käufer (2,38%)
38.413 €
Grundbucheintrag (0,5%)
8.070 €
1Der angezeigte Wert ist eine automatisch berechnete Schätzung von immowelt.
2Bei den Angaben handelt es sich um ortsübliche Werte. Individuelle Kosten können abweichen.
Lage

Osdorf, Hamburg (22609)
Der Anbieter hat die genaue Adresse nicht freigegeben
Weitere Informationen
Weitere Services
Lust auf eine Besichtigung?
Eine Frage zur Immobilie?
Ăśber den Anbieter
Kurt P. Schuhmann KG - Hausmakler seit 1951MaklerbĂĽro
Elbchaussee 183 a, 22605 Hamburg
Partnerschaft + Diamond Partner
Herr Meno SchuhmannDein Kontakt
Online-ID: 2dysr5x
Referenznummer: JSTR004

Kurt P. Schuhmann KG - Hausmakler seit 1951
Wie zufrieden bist du mit dieser Seite (nicht mit der Immobilie selbst)?

