Version: 8.24.0Navigation ĂĽberspringen
HausHirsch GmbH
339.000 €
4 Zimmer  â€˘  91,8 m²  â€˘  3. Geschoss

Wohnung zum Kauf
339000 €
3.693 €/m²
4 Zimmer  â€˘  91,8 m²  â€˘  3. Geschoss

Topsanierte, moderne 4-Zimmer-Wohnung in zentraler Lage zu verkaufen

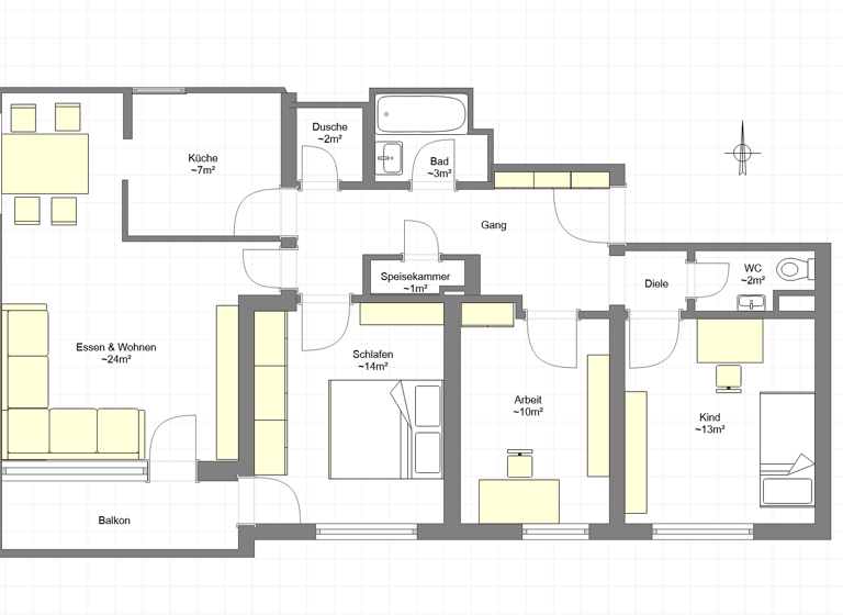
Diese exklusive Etagenwohnung bietet modernes Wohnen auf höchstem Niveau. Mit einer großzügigen Wohnfläche von 91,8 m² verteilt sich diese 4-Zimmer-Wohnung auf 3 Schlafzimmer und 2 Bäder. Sie befindet sich im 3. Obergeschoss eines gepflegten Gebäudes in Traunreut.

Die letzte Modernisierung wurde erst im Jahr 2019 abgeschlossen, sodass die Wohnung in einem neuwertigen Zustand ist. Die hochwertige Ausstattung umfasst unter anderem:

- Neuer Bodenbelag aus edlen Fliesen und Laminat
- Neue Elektrische Rollläden (mit Fernbedienung) für Komfort und Sicherheit
- Neuer Separater Duschraum und neu gestaltetes Bad
- Neue Heizkörper für effiziente Wärmeverteilung
- Kernsanierung im Jahr 2019 mit neuen Wasser- und Elektroleitungen

Zusätzliche Highlights dieser Immobilie sind:

- Tiefgarage mit absperrbarem TG-Stellplatz
- Aufzug vorhanden fĂĽr bequemen Zugang zu allen Etagen
- Kellerraum für zusätzlichen Stauraum
- Gäste-WC für praktische Nutzung
- Fernwärmeversorgung für nachhaltige Energienutzung
- Atemberaubender Bergblick fĂĽr ein einzigartiges Wohnambiente

Diese Immobilie bietet gehobenen Wohnkomfort in einer ruhigen und attraktiven Lage von Traunreut.

Merkmale

  • Bezug: sofort
  • 3. Geschoss
  • Personenaufzug
  • Kelleranteil
  • Tiefgarage
  • Gäste-WC
  • Balkon
  • Badezimmer: Badewanne, Bad mit Dusche

Realisiere Dein Projekt

Bausubstanz und Energie

Energieausweis

B
  • Baujahr1969
  • Zustand der Immobilieneuwertig
  • EnergieträgerFernwärme
MediumRectangleTop

Preisdetails

Kaufpreis
339000 €
3.692,81 €/m²
Hausgeld
350 €
Provision für Käufer
3,57%
Die angegebene Käuferprovision (inkl. MwSt.) ist verdient und fällig mit Beurkundung des notariellen Kaufvertrages.
Weitere Preisinformationen
1 Tiefgaragenstellplatz
Geschätzte Gesamtkosten
369.747 €1
Kaufpreis
339.000 €
Notarkosten (1,5%)
5.085 €
Grunderwerbsteuer (3,5%)
11.865 €
Provision für Käufer (3,57%)
12.102 €
Grundbucheintrag (0,5%)
1.695 €
1Der angezeigte Wert ist eine automatisch berechnete Schätzung von immowelt.
2Bei den Angaben handelt es sich um ortsübliche Werte. Individuelle Kosten können abweichen.

Lage

address-icon
Traunreut (83301)
Der Anbieter hat die genaue Adresse nicht freigegeben
Die angebotene Immobilie liegt in einer ruhigen und dennoch verkehrsgünstigen Lage in Traunreut. Nur einen kurzen Fußweg von 4 Minuten erreichen Sie die nächste Haltestelle des öffentlichen Personennahverkehrs, was eine bequeme Anbindung an das regionale Verkehrsnetz gewährleistet. Der nächste Hauptbahnhof befindet sich lediglich 15 Minuten Fahrzeit entfernt, sodass Sie schnell und unkompliziert in andere Städte reisen können. Der nächste Flughafen ist in nur 45 Minuten erreichbar, ideal für Reisende oder Geschäftsleute. Die Umgebung bietet eine gute Infrastruktur mit nahegelegenen Einkaufsmöglichkeiten, Schulen und Freizeiteinrichtungen, während die naturnahe Lage für Entspannung und Erholung sorgt.

Weitere Informationen

Sonstiges
HausHirsch Exklusiv - Inserate - https://haushirsch.de/immobilien/ Stichworte Tiefgarage vorhanden, Nutzfläche: 5,00 m², Anzahl der Schlafzimmer: 3, Anzahl der Badezimmer: 2, Anzahl Balkone: 1, Balkon-Terrassen-Fläche: 8,00 m², Bundesland: Bayern, modernisiert: 2025, Distanz zum Flughafen: 51.47, Distanz zum Hauptbahnhof: 11.39, Distanz zum Bus: 0.34

Weitere Services

Lust auf eine Besichtigung?
Eine Frage zur Immobilie?
Nachricht hinzufĂĽgen
Mit der Nutzung der oben angegebenen Telefonnummer oder durch Klicken auf „Kontaktieren“ akzeptierst Du die Allgemeinen Nutzungsbedingungen, denen Du jederzeit widersprechen kannst. Weitere Informationen zum Datenschutz

Ăśber den Anbieter

HausHirsch GmbH
HausHirsch GmbHMaklerbĂĽro
Dreischeibenhaus 1, 40213 DĂĽsseldorf
partner badge
Partnerschaft
Herr Dieter ZornDein Kontakt
Online-ID: 2ny5u5c
Referenznummer: HA2530454
HausHirsch GmbH
HausHirsch GmbH
Bewertung: 4,1 von 5 Sternen
Nachricht hinzufĂĽgen
Mit der Nutzung der oben angegebenen Telefonnummer oder durch Klicken auf „Kontaktieren“ akzeptierst Du die Allgemeinen Nutzungsbedingungen, denen Du jederzeit widersprechen kannst. Weitere Informationen zum Datenschutz
MediumRectangleTop
MediumRectangleBottom
MediumRectangleTop
Wie zufrieden bist du mit dieser Seite (nicht mit der Immobilie selbst)?