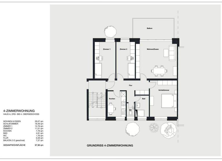
Diese 4-Zimmer-Wohnung mit einer Wohnfläche von 97m² überzeugt durch ihre hochwertige Ausstattung sowie eine durchdachte Raumaufteilung. Sie verfügt über eine separate Küche sowie ein großzügiges Wohn- und Esszimmer mit Zugang zum Balkon, der zusätzlichen Wohnraum im Freien bietet.
Neben dem hellen Wohnbereich stehen drei Schlafzimmer zur Verfügung, die flexibel als Schlaf-, Kinder- oder Arbeitszimmer genutzt werden können. Das modern gestaltete Tageslichtbad ist mit einer Dusche ausgestattet. Zusätzlich steht eine separate Toilette zur Verfügung, was den Wohnkomfort insbesondere für Familien oder Gäste deutlich erhöht.
In den Wohnräumen wurde hochwertiger Parkettboden verlegt, der für eine warme und einladende Atmosphäre sorgt. Eine moderne Markeneinbauküche (zzgl. 50,00 € monatlich) ergänzt das stilvolle Wohnkonzept.
Die Wohnung entspricht dem Energieeffizienzstandard KfW 55 und wird nachhaltig über eine Luft-Wasser-Wärmepumpe beheizt.
Zur Wohnung gehören außerdem ein eigener Kellerraum sowie ein gemeinschaftlicher Wasch- und Trockenraum.
Parkmöglichkeit: Nach Abschluss der Sanierung der Garagenanlage kann optional ein Stellplatz für 80,00 € monatlich angemietet werden.
Merkmale
Bezug: nach Absprache
1. Geschoss
Einbauküche
Kelleranteil
Balkon
Badezimmer: Bad mit Dusche, Bad mit Fenster
Waschraum
Renoviert / saniert Eichenparkettboden Balkon Markeneinbauküche (inkl. 50,00€ monatlich) Bad mit Fenster und Dusche Kunststofffenster, dreifach verglast Kellerraum Wasch- und Trockenraum Kabelanschluss Energieeffizienz KfW 55 Luft-Wasser-Wärmepumpe
Grundrisse
Grundrisse
1 / 1
Realisiere Dein Projekt
Bausubstanz und Energie
Energieausweis
A+
Baujahr1968
Zustand der ImmobilieMassivhaus, renoviert / saniert
HaustypKfW 55
HeizungsartZentralheizung
EnergieträgerLuft-/Wasser-Wärmepumpe
Mietkosten
Warmmiete
1.750 €
Kaltmiete
15,82 €/m²
1.550 €
Nebenkosten
200 €
Heizkosten
in Warmmiete enthalten
Kaution
3.000,00 3.000,00 EUR
Lage
Singen (78224)
Der Anbieter hat die genaue Adresse nicht freigegeben
Die Wohnung befindet sich in Singen-Nord, einem ruhigen und dennoch gut angebundenen Stadtteil. Einkaufsmöglichkeiten des täglichen Bedarfs, Apotheken, Schulen und Kindergärten sind in wenigen Minuten erreichbar. Die Anbindung an den öffentlichen Nahverkehr ist gut, und auch die Innenstadt sowie die Autobahn sind schnell zu erreichen. Die Umgebung bietet zudem vielfältige Möglichkeiten für Spaziergänge und Freizeitaktivitäten.
Weitere Informationen
Stichworte
Anzahl der Schlafzimmer: 3, Anzahl der Badezimmer: 1, Anzahl der separaten WCs: 1, Anzahl Balkone: 1, Anzahl der Wohneinheiten: 10, 1 Etagen