

CUBION Immobilien AG
Herr Niklas Klein
+49 ···
Nr. anzeigenPreise & Kosten
Provision für Mieter
provisionsfrei
Warum sehe ich diese Anzeige? – Du siehst diese Anzeige basierend auf Ihrer Navigation auf unserer Website und den Suchkriterien, die du verwendet hast.
Lage
Fahrzeit nur nächsten Autobahn: 4 Minuten
Fahrzeit zum nächsten Hauptbahnhof: 10 Minuten
Fahrzeit zum nächsten Flughafen: 35 Minuten
Laufweg zu öffentlichen Verkehrsmitteln: 1 Minute
Büro-/Praxisfläche
Baujahr
Mitte 2025
Bezug
nach Vereinbarung
Details
Objektbeschreibung
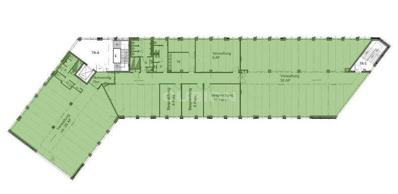
Folgende Flächen stehen zur Verfügung:
Gebäude A:
Staffelgeschoss: ca. 410 m²
Gebäude B:
Erdgeschoss: ca. 450 m²
Erdgeschoss: ca. 370 m²
1. Obergeschoss: ca. 390 m²
1. Obergeschoss: ca. 390 m²
2. Obergeschoss: ca. 440 m²
2. Obergeschoss: ca. 410 m²
3. Obergeschoss: ca. 440...
Ausstattung
Bodenbelag: nach Mieterwunsch
Kabelführung: Hohlraumboden (Bodentanks)
Kühlung: Betonkernaktivierung
Beleuchtung: Stehleuchten
Sonstiges: unterstützende Be- und Entlüftung
Aufzug: Personenaufzug
Baujahr: Fertigstellung 2025
Parkplätze: Außen- und Tiefgaragenstellplätze
Weitere Informationen
Sonstiges
GEG 2020: Ein Energieausweis liegt zur Zeit nicht vor.
Dieses Angebot ist provisionsfrei für den Mieter!
Alle Informationen in diesem Exposé beruhen auf Angaben, die wir vom Vermieter erhalten haben. Für Richtigkeit und Vollständigkeit übernehmen wir keine Gewähr. Zwischenvermietung vorbehalten. Die...
Anbieter der Immobilie

CUBION Immobilien AG
Akazienallee 65, 45478 Mülheim

Online-ID: 2e2lf5m
Referenznummer: 086/G3/E4/Eh1
Finde Angebote wie dieses
Hier geht es zu unserem Impressum, den Allgemeinen Geschäftsbedingungen, den Hinweisen zum Datenschutz und nutzungsbasierter Online-Werbung.