
Marko Künne Immobilien
034 ···
Nr. anzeigenPreise & Kosten
Provision für Käufer
provisionsfrei
Lage
Großpösna ist eine Gemeinde mit etwa 5.300 Einwohnern im Landkreis Leipzig. Sie liegt am Rande des Leipziger Neuseenlandes, einem beliebten Naherholungsgebiet. Der Störmthaler See ist nur etwa 10 Minuten mit dem Auto oder ca. 20 Minuten mit dem Fahrrad entfernt. Auch der Markkleeberger See ist nur 15 Minuten mit dem Auto...
Land-/Forstwirtschaft
Kategorie
Bauernhof
Bezug
sofort
Energie & Heizung
Warum sehe ich diese Anzeige? – Du siehst diese Anzeige basierend auf Ihrer Navigation auf unserer Website und den Suchkriterien, die du verwendet hast.
Weitere Energiedaten
Energieträger
Gas
Heizungsart
offener Kamin
Details
Objektbeschreibung
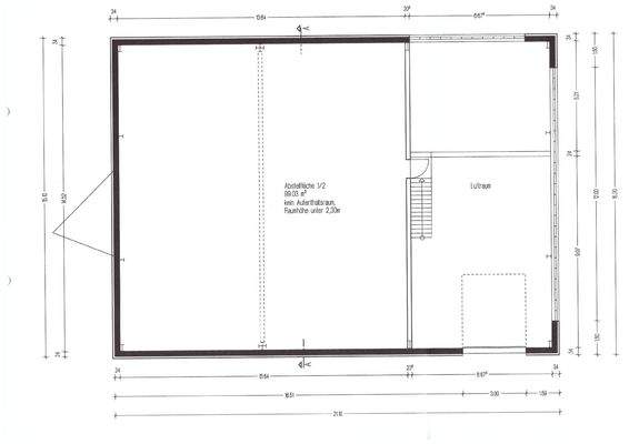
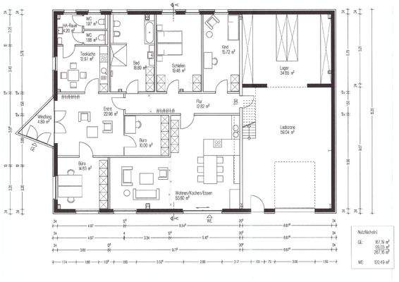
Das angebotene Objekt präsentiert eine gelungene Kombination aus Arbeits- und Wohnbereichen. Es handelt sich um ein Gebäude, das eine Einliegerwohnung mit eigenem Büro sowie eine Werkstatt mit mehreren Garagen umfasst. Es handelt sich dabei um ca.120m² Wohnfläche und ca. 200m² Gewerbefläche. Darüber hinaus besteht die Option...
Ausstattung
-4.000 Liter Zysterne, freistehend und erweiterbar durch Anschluss weiterer Behälter
-Alarmanlage, mit Video innen und außen und Aufschaltung zur Leitstelle
-Klimaanlage (Schlafzimmer, Küche, Wohnzimmer, Versand über Lager/Ladezone)
-hochwertige Einbauküche, amerikanischer Stil
-Kamin
-elektrische...
Preisinformation
20 Stellplätze
Weitere Informationen
Stichworte
Garage vorhanden, Stellplatz vorhanden, Wohnfläche: 120,00 m², Gesamtfläche: 320,00 m², Anzahl der Schlafzimmer: 2, Anzahl der Badezimmer: 2, Anzahl Balkone: 1, Anzahl Loggias: 1, Anzahl der Wohneinheiten: 1, Anzahl der Gewerbeeinheiten: 1, Bundesland: Sachsen, 2 Etagen, modernisiert: 2021
Anbieter der Immobilie
Online-ID: 2e2rz5u
Referenznummer: 600172
Finde Angebote wie dieses
Hier geht es zu unserem Impressum, den Allgemeinen Geschäftsbedingungen, den Hinweisen zum Datenschutz und nutzungsbasierter Online-Werbung.