
Adler Group
Frau S. Maarouf
+49 ···
Nr. anzeigenPreise & Kosten
Kaution
nach Vereinbarung
Provision für Mieter
provisionsfrei
Warum sehe ich diese Anzeige? – Du siehst diese Anzeige basierend auf Ihrer Navigation auf unserer Website und den Suchkriterien, die du verwendet hast.
Lage
Die Prenzlauer Promenade bietet vielfältige Einkaufsmöglichkeiten und alle Geschäfte des täglichen Bedarf. In wenigen Gehminuten erreicht man den öffentlichen Nahverkehr (Buslinie 255). Öffentliche Parkmöglichkeiten sind in der Umgebung vorhanden.
Büro-/Praxisfläche
Kategorie
Bürogebäude
Baujahr
1997
Bezug
sofort
Energie & Heizung
Warum sehe ich diese Anzeige? – Du siehst diese Anzeige basierend auf Ihrer Navigation auf unserer Website und den Suchkriterien, die du verwendet hast.
Wärme
Energieausweistyp
Verbrauchsausweis
Gebäudetyp
Nicht-Wohngebäude
Endenergieverbrauch (Wärme)
55,00 kWh/(m²·a)
Weitere Energiedaten
Energieträger
Fernwärme
Heizungsart
Zentralheizung
Details
Objektbeschreibung
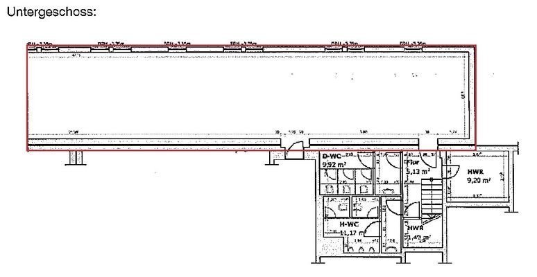
Die Lagerfläche befindet sich im Untergeschoss eines im 1997 erbauten Wohn- und Geschäftshauses. Die angebotene Einheit verfügt über ca. 196,64 m².
Ausstattung
- Laminatboden
- Aufzug im Objekt
- Zentralheizung
- Strom und Licht vorhanden
Weitere Informationen
Sonstiges
Zur Vereinbarung eines Besichtigungstermins lassen Sie uns bitte eine Anfrage über das Kontaktformular zukommen.
Wir werden uns schnellstmöglich mit Ihnen in Verbindung setzen. Folgende Unterlagen sind bei Mietvertragsabschluss vorzulegen:
- Personalausweis (im Original bei Vertragsabschluss...
Dokumente
Anbieter der Immobilie

Adler Group
Online-ID: 2e2vx5a
Referenznummer: 4702-0333-LAGER
Finde Angebote wie dieses
Hier geht es zu unserem Impressum, den Allgemeinen Geschäftsbedingungen, den Hinweisen zum Datenschutz und nutzungsbasierter Online-Werbung.