Das Seniorenzentrum Tiefenbach besteht aus einer Anlage für Pflege mit insgesamt 50 Pflegebetten und einem Gebäude für Betreutes Wohnen mit insgesamt 14 Wohneinheiten sowie einem integrierten Demenz-Wohnbereich für maximal 12 Personen.
Die Pflege ist in 2 große Stationsbereiche gegliedert, in jedem haben 25 Pflegeplätze zwischen 24 m² bis 27 m² ihren Raum. In den insgesamt 50 vollstationären Betten können Menschen aller Pflegestufen versorgt werden.
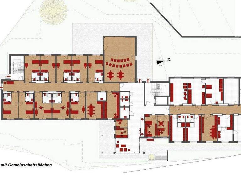
Im Erdgeschoss entstehen Verwaltungs- und Therapieräume, ein Gemeinschaftsraum mit Terrasse sowie ein großzügiger Eingangsbereich mit Empfang.
Merkmale
Bezug: 2026
Personenaufzug
breite Türen und Flure barrierefrei und behindertengerecht bodenebener Duschbereich Aufzug in die einzelnen Geschosse Notrufsystem in jeder Wohneinheit Brandmeldeanlage großzügige bzw. französische Balkone ökologische Heizanlage mit nachwachsenden Rohstoffen
Grundrisse
Grundrisse
1 / 3
Realisiere Dein Projekt
Bausubstanz und Energie
Der Anbieter hat keine Informationen zum Energieverbrauch bereit gestellt.
Zustand der ImmobilieProjektiert
Preisdetails
Kaufpreis
239041 €239.041 €
9.705,28 €/m²
Provision für Käufer
provisionsfrei
Geschätzte Gesamtkosten
252.188 €1
Kaufpreis
239.041 €
Kaufnebenkosten
13.147 €
2
Notarkosten (1,5%)
3.586 €
Grunderwerbsteuer (3,5%)
8.366 €
Grundbucheintrag (0,5%)
1.195 €
1Der angezeigte Wert ist eine automatisch berechnete Schätzung von immowelt.
2Bei den Angaben handelt es sich um ortsübliche Werte. Individuelle Kosten können abweichen.
Lage
Tiefenbach (93464)
Der Anbieter hat die genaue Adresse nicht freigegeben
Das Pflegezentrum befindet sich in der charmanten Gemeinde Tiefenbach, eingebettet in die malerische Landschaft von Bayern. Diese idyllische Lage bietet die perfekte Mischung aus Ruhe und Zugänglichkeit. Die Umgebung ist geprägt von einer harmonischen Kombination aus grünen Wäldern und sanften Hügeln, ideal für Naturliebhaber und Erholungssuchende.
In unmittelbarer Nähe finden sich zahlreiche Wander- und Radwege, die zu ausgedehnten Erkundungen der naturnahen Umgebung einladen. Die Nähe zum Bayerischen Wald erweitert das Freizeitangebot um spannende Outdoor-Aktivitäten. Schulen und Kindergärten sind ebenfalls in der näheren Umgebung vorhanden, was die Wohnung zu einem idealen Lebensmittelpunkt für Familien macht.
Diese Lage verspricht ein Leben in Balance - die Ruhe der Natur kombiniert mit der Bequemlichkeit städtischen Komforts in Reichweite. Entdecken Sie die vielfältigen Möglichkeiten, die Tiefenbach Ihnen bietet.
Weitere Informationen
Sonstiges
Energiesparhaus nach höchstem Standard - förderfähig aufgrund KfW40 (NH) - Standard mit QNG Mietvertrag über 20 Jahre Festmietzeit + Verlängerungsoption Mietzins-Erhöhung gesichert über Wertsicherungsklausel Bruttorendite ca. 3,2 + hoher Steuervorteil bevorzugtes Belegungsrecht für Erwerber und Angehörige Degressive Abschreibung mit 5 % auf Herstellungskosten + Sonderabschreibung gem. § 7b EstG + erhöhte AfA für Außenanlagen und Einrichtung
Stichworte
Nutzfläche: 31,22 m², Anzahl der Schlafzimmer: 1, Anzahl der Badezimmer: 1, 3 Etagen