
Zupcevic Immobilien GmbH
Herr Sebastian Zupcevic
+49 ···
Nr. anzeigenPreise & Kosten
Provision für Käufer
6,25 % vom Kaufpreis inkl. gesetzlicher MwSt.
Abschreibung/Anlage
Denkmalschutz-Afa
Lage
Die Stadt Celle mit Ihren rund 71.000 Einwohnern ist eine große selbständige Stadt im Bundesland Niedersachsen und gilt als das malerische Südtor zur Lüneburger Heide. Mit ihren sorgsam restaurierten Fachwerkhäusern, der einzigartigen Altstadt, den Denkmälern, den diversen Einzelhandelsgeschäften, Cafés, Restaurants und den...
Das Renditeobjekt
Baujahr
1500
Energie & Heizung
Warum sehe ich diese Anzeige? – Du siehst diese Anzeige basierend auf Ihrer Navigation auf unserer Website und den Suchkriterien, die du verwendet hast.
Energieausweis: für diesen Gebäudetyp nicht notwendig
Weitere Energiedaten
Energieträger
Gas
Details
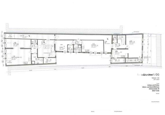
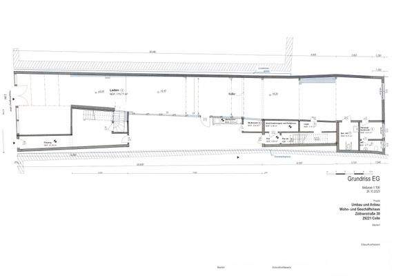
Objektbeschreibung
Diese Rarität wurde etwa im 15. Jahrhundert auf einem knapp 342 m² großen Grundstück erbaut und gehört zur ältesten Immobilie in Celle. Die Immobilie verfügt über eine Teilunterkellerung, einer ebenerdigen Gewerbefläche mit einer Nutzfläche von knapp 199 m² sowie die Möglichkeit einer Konzipierung von vier Wohneinheiten in...
Weitere Informationen
Sonstiges
Wenn wir Ihr Interesse geweckt haben, können wir Ihnen bei Kontaktaufnahme gerne nähere Informationen und detaillierte Planungs- und Bauunterlagen für eine Neuprojektierung bzw. den Erwerb dieser Immobilie zur Verfügung stellen.
Durch die zahlreichen Abschreibungs- sowie lukrativer...
Anbieter der Immobilie
Zupcevic Immobilien GmbH
Stein-Hardenberg-Straße 122b, 22045 Hamburg
Online-ID: 2e37c5d
Referenznummer: A5059#kCOTN
Finde Angebote wie dieses
Hier geht es zu unserem Impressum, den Allgemeinen Geschäftsbedingungen, den Hinweisen zum Datenschutz und nutzungsbasierter Online-Werbung.