
IF Group AG
Team Vermietung Freiberg
+ 4 ···
Nr. anzeigenPreise & Kosten
Kaution
3 Monatskaltmieten
Warum sehe ich diese Anzeige? – Du siehst diese Anzeige basierend auf Ihrer Navigation auf unserer Website und den Suchkriterien, die du verwendet hast.
Lage
Hohenstein-Ernstthal liegt malerisch am südlichen Hang des 480 m hohen Pfaffenbergs in einer landschaftlich reizvollen Gegend des Erzgebirgsvorlandes. Derzeit leben hier ca. 15.980 Einwohner (Stand Dezember 2008).
Die umliegende Infrastruktur sowie Anbindung an den ÖPNV sind gut.
Einkaufsmöglichkeiten, kleine...
Die Wohnung
Wohnungslage
1. Geschoss
Derzeitige Nutzung
frei
Wohnanlage
Energie & Heizung
Warum sehe ich diese Anzeige? – Du siehst diese Anzeige basierend auf Ihrer Navigation auf unserer Website und den Suchkriterien, die du verwendet hast.
Energieausweistyp
Verbrauchsausweis
Gebäudetyp
Wohngebäude
Baujahr laut Energieausweis
1870
Wesentliche Energieträger
Erdgas H
Gültigkeit
22.05.2015 bis 22.05.2025
Effizienzklasse
E
Endenergieverbrauch
150,61 kWh/(m²·a)
Weitere Energiedaten
Energieträger
Gas
Heizungsart
Etagenheizung
Details
Objektbeschreibung
Objektbeschreibung
Die teilweise renovierte 3-Raum-Wohnung befindet sich im 1. Obergeschoss in einem Eckhaus in Reihenbebauung. Sie liegt im Zentrum von Hohenstein-Ernstthal. Kleinere Gewerbeeinheiten vervollständigen das Bild.
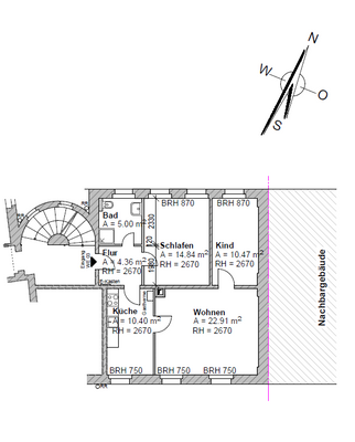
Raumaufteilung
Vom Flur aus erreichen Sie das Bad, Schlafzimmer und die Küche...
Weitere Informationen
Besichtigungstermine
Bei Interesse vereinbaren Sie gern einen Besichtigungstermin mit uns Hinterlassen Sie Ihre Anschrift sowie Telefonnummer und wir werden uns umgehend mit Ihnen in Verbindung setzen.
Hinweise zum Datenschutz unter
https://www.ifgruppe.com/impressumdatenschutz.
Mit Ihrer Kontaktanfrage...
Anbieter der Immobilie
IF Group AG
Oberes Muldental 2, 09599 Freiberg
Online-ID: 2e6fp5x
Finde Angebote wie dieses
Weitere Immobilien
Hier geht es zu unserem Impressum, den Allgemeinen Geschäftsbedingungen, den Hinweisen zum Datenschutz und nutzungsbasierter Online-Werbung.