Version: 8.26.0Navigation überspringen
Mietkosten auf Anfrage
2.120 m² Lagerfläche  •  teilbar ab 300 m²
Immowelt logo

Lagerhalle zur Miete
Mietkosten auf Anfrage
2.120 m² Lagerfläche  •  teilbar ab 300 m²

Besondere Gewerbeliegenschaft/Firmenstandort in zentraler Lage auf ca. 2.120m² Fläche, Stellplätze

Angeboten wird hier ein ehemaliger Fernmeldehochbunker der NVA/Bundeswehr in besonderer Lage der Hansestadt Rostock.

Die Immobilie befindet sich auf einem insgesamt 6.441 m² großen Grundstück und unterteilt sich in drei wesentliche Gebäudeteile:

- Hochbunker als Lagerfläche nutzbar
- Obergeschoss als Lagerfläche nutzbar
- eine massive Großgarage mit Abstellräumen

Die Gesamtfläche beträgt ca. 2.120m².
Davon entfallen ca. 1.020 m² auf das Obergeschoss und ebenfalls ca. 1.020m² auf den Hochbunker.

Das Objekt ist mit mehreren Sanitäranlagen und vier Küchen ausgestattet und verfügt über eine Heizung sowie eine Solaranlage. Auf dem Grundstück stehen derzeit ca. 40 Pkw-Stellplätze zur Verfügung, die auf Wunsch erweitert werden können.

Die Immobilie kann in Abstimmung mit dem Mieter individuell renoviert und an die jeweiligen Bedürfnisse angepasst werden.

Besichtigungen sind kurzfristig nach Absprache möglich!

Merkmale

  • Bezug: nach Vereinbarung
  • 2 Geschosse
  • 6.441 m² Grundstück
  • Bodenbelag: Stein
  • 40 Stellplätze: Garage, Außen-Stellplatz
  • Fenster: Kunststoff
  • Raumaufteilung flexibel
- Lagerfläche mit ca 1.020 m² im Obergeschoss
- Hochbunker mit ca. 1.020 m²
- Bunker mit PKW und Kleinbus befahrbar
- geräumige Sanitäranlagen
- 2 x Küchen
- 4 Gargen
- 1 x Lagerraum
- 40 x Parkplätze (mit möglicher Erweiterung)
- Bunker beheizt
- Solaranlage

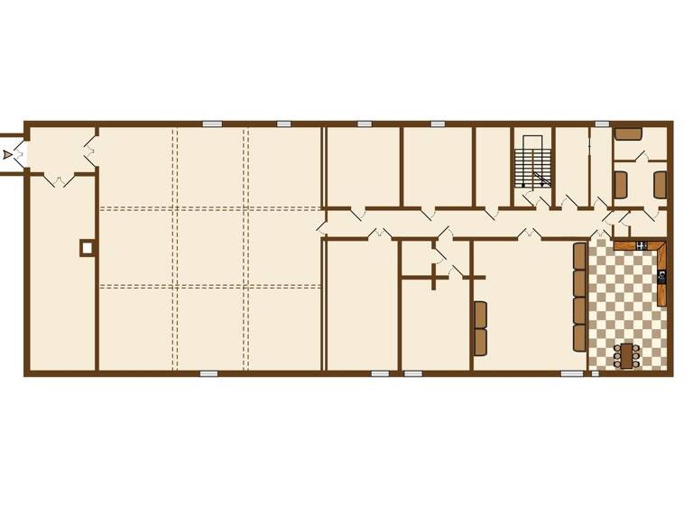
Grundrisse

Grundrisse
1 / 2

Bausubstanz und Energie

Energieausweis

Ein Energieausweis ist für diesen Gebäudetyp nicht notwendig.
  • Baujahr1975
  • HeizungsartZentralheizung
  • EnergieträgerGas
Immowelt logo

Mietkosten

Miete auf Anfrage
Provision für Mieter
3,57 Nettokaltmieten inklusive Mwst.
Kaution
3 Nettokaltmieten

Lage

address-icon
Kadammsweg 4BrinckmansdorfRostock (18146)
Der Kadammsweg 4 in Rostock-Brinckmansdorf bietet eine gute Verkehrsanbindung. Über die B105 und die nahegelegenen Autobahnen A20 und A19 erreicht man schnell den Rostocker Überseehafen, den Flughafen Rostock-Laage (ca. 30 Minuten) sowie Großhändler in der Umgebung. Auch der Flughafen Hamburg ist über die A20 in etwa 2,5 Stunden erreichbar. Die Lage ist sowohl für private als auch geschäftliche Zwecke ideal.

Weitere Informationen

Sonstiges Der Makler-Vertrag mit uns und/oder unserem Beauftragten kommt durch schriftliche Vereinbarung oder durch die Inanspruchnahme unserer Maklertätigkeit auf der Basis des Objekt-Exposés und seiner Bedingungen zustande. Die Mietercourtage in Höhe von 3,57 Kaltmieten einschließlich gesetzlicher Mehrwertsteuer ist bei Vertragsabschluss verdient und fällig. Die Höhe der Bruttocourtage unterliegt einer Anpassung bei Steuersatzänderung.
Alle Angaben zum Objekt stammen vom Eigentümer. Für deren Richtigkeit können wir keine Gewähr übernehmen. Eine Zwischenvermietung behält sich der Auftraggeber / Verkäufer ausdrücklich vor.


DSGVO:
Wir verweisen hiermit auf die Speicherung Ihrer Daten, sobald Sie uns eine Kontakt-Anfrage senden. Die Gegebenheiten des Datenschutzes können Sie unter folgendem Link nachlesen. https://www.immofair-rostock.de/datenschutz/

Die Daten werden nicht an Dritte weitergegeben und dienen lediglich der Kontaktaufnahme, um ggf. einen Besichtigungstermin zu vereinbaren. Stichworte Sonstiges: Getrennte Damen- und Herren-WCs

Weitere Services

Lust auf eine Besichtigung?
Eine Frage zur Immobilie?
Mit einer persönlichen Nachricht hast du bessere Chancen auf eine Antwort.
Mit der Nutzung der oben angegebenen Telefonnummer oder durch Klicken auf „Kontaktieren“ akzeptierst Du die Allgemeinen Nutzungsbedingungen, denen Du jederzeit widersprechen kannst. Weitere Informationen zum Datenschutz

Über den Anbieter

Arnold-Bernhard-Str. 33, 18057 Rostock
partner badge
Partnerschaft
Frau Ayleen WeihrauchDein Kontakt
Online-ID: 25XPALZJB6VT
Referenznummer: 83620399
Wie zufrieden bist du mit dieser Seite (nicht mit der Immobilie selbst)?