Version: 8.22.4Navigation überspringen
1.095.000 €
5 Zimmer  •  260 m²  •  1.175 m² Grundstück
Immowelt logo

Einfamilienhaus zum Kauf
1095000 €
4.212 €/m²
5 Zimmer  •  260 m²  •  1.175 m² Grundstück

++Luxuriöses Einfamilienhaus mit Traumaussicht in Lieboch++

Willkommen in Ihrem sonnigen Traumhaus in Lieboch - ein Zuhause, das luxuriöses Wohnen auf höchstem Niveau mit einem beeindruckenden Fernblick vereint.

Dieses exklusive Einfamilienhaus mit ca. 260 m² Wohnfläche bietet großzügigen Raum für die ganze Familie und erfüllt höchste Ansprüche an Komfort, Design und Lebensqualität. Fünf lichtdurchflutete Zimmer überzeugen durch ihre durchdachte Raumaufteilung und verfügen allesamt über einen direkten Ausgang auf die großzügige Sonnenterrasse.

Die hochwertige Ausstattung umfasst edle Fliesen- und Parkettböden sowie eine Fußbodenheizung im Obergeschoss, die für ein angenehmes Wohnklima sorgt. Die großzügige Küche ist mit hochwertigen Markengeräten ausgestattet und verfügt über einen gemütlichen Frühstücks-Essbereich. Ergänzt wird sie durch eine separate Back-Kitchen mit großem Wirtschaftsraum - ideal für den anspruchsvollen Alltag.

Das elegante, helle Badezimmer lässt keine Wünsche offen: Doppelwaschbecken, Walk-in-Dusche und Bidet schaffen eine private Wellnessoase. Von hier aus gelangen Sie direkt auf die Terrasse und können anschließend im beheizten Pool entspannen.

Ein besonderes Highlight dieser Immobilie ist der große, überdachte Swimmingpool, der mittels Wärmepumpe beheizt wird, sowie der liebevoll und hochwertig angelegte Garten. Der komplett uneinsichtige Außenbereich bietet absolute Privatsphäre und lädt dazu ein, laue Sommerabende auf einer der drei Terrassen zu genießen - begleitet von einem atemberaubenden Fernblick über die Weststeiermark.

Ein Sauna-Anschluss für Ihren zukünftigen Wellnessbereich ist bereits vorbereitet. Für zusätzliche Sicherheit sorgt eine installierte Alarmanlage. Die umweltfreundliche Photovoltaik- und Solaranlage gewährleistet nachhaltige Energieversorgung, reduziert laufende Kosten und steigert die Unabhängigkeit.

Vor dem Haus stehen Ihnen PKW-Stellplätze sowie ein Doppelcarport zur Verfügung. Darüber hinaus gibt es mehrere großzügige, helle Abstellräume - ideal für Fahrräder, Sportequipment oder zum Überwintern von Pflanzen.

Die Lage vereint das Beste aus zwei Welten: hervorragende öffentliche Anbindung durch Bus und Bahn sowie die Ruhe und Idylle des ländlichen Lebens. Einkaufsmöglichkeiten und Einrichtungen des täglichen Bedarfs befinden sich in unmittelbarer Nähe.

Dieses exklusive Zuhause verbindet modernen Wohnkomfort, luxuriöse Ausstattung und eine hervorragende Lage - ein wahres Paradies für Sie und Ihre Familie.

Lassen Sie sich diese besondere Gelegenheit nicht entgehen und vereinbaren Sie noch heute einen Besichtigungstermin.
Ihr neues Zuhause wartet auf Sie - ich freue mich darauf, Ihnen weitere Details persönlich zu präsentieren.

 

_Die angegebenen Daten stammen vom Eigentümer und/oder Dritten und wurden mit Sorgfalt erhoben. Für die Richtigkeit und Vollständigkeit kann jedoch keine Haftung übernommen werden. Zahlenangaben können gegebenenfalls gerundet oder geschätzt sein. Das Angebot ist freibleibend und unverbindlich. Irrtümer und Änderungen sind vorbehalten. Nachdruck/Vervielfältigung nur mit Genehmigung der Immo-Circle GesbR._

Wir weisen darauf hin, dass zwischen dem Vermittler und dem zu vermittelnden Dritten ein familiäres oder wirtschaftliches Naheverhältnis besteht.

Der Vermittler ist als Doppelmakler tätig.

Infrastruktur / Entfernungen

Gesundheit
Arzt <1.000m
Apotheke <1.000m
Krankenhaus <10.000m

Kinder & Schulen
Schule <1.500m
Kindergarten <1.000m

Nahversorgung
Supermarkt <1.000m
Bäckerei <1.500m
Einkaufszentrum <8.000m

Sonstige
Bank <1.000m
Geldautomat <1.000m
Polizei <1.500m
Post <1.500m

Verkehr
Bus <500m
Autobahnanschluss <3.000m
Bahnhof <500m
Straßenbahn <10.000m
Flughafen <9.000m

Angaben Entfernung Luftlinie / Quelle: OpenStreetMap

Merkmale

  • Bezug: nach Vereinbarung
  • 1.175 m² Grundstück
  • 3 Stellplätze: 3 Außen-Stellplätze
  • Gäste-WC
  • Terrasse
  • Badezimmer: Badewanne, Bad mit Fenster
  • Waschraum
  • Bodenbelag: Fliesen, Parkett

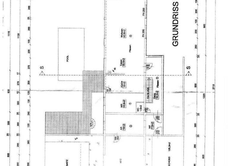
Grundrisse

Grundrisse
1 / 5

Realisiere Dein Projekt

Bausubstanz und Energie

Heizwärmebedarf (HWB)

D

Gesamtenergieeffizienz (fGEE)

C
  • Baujahr1995
  • Zustand der ImmobilieNeubau, Massivhaus
  • HeizungsartZentralheizung: Fußbodenheizung
  • EnergieträgerÖl, Solar, Luft-/Wasser-Wärmepumpe
Immowelt logo

Preisdetails

Kaufpreis
1095000 €
4.211,54 €/m²
Provision für Käufer
39.420,00 € inkl. 20% USt.
Weitere Preisinformationen
3 Stellplätze

Lage

address-icon
Lieboch (8501)
Willkommen in Ihrem neuen, modernen Zuhause und Gartenparadies.
Dieses großzügige Einfamilienhaus überzeugt durch seine ausgezeichnete Lage in unmittelbarer Nähe zu Graz. Sämtliche Annehmlichkeiten des täglichen Lebens - Arzt, Apotheke, Kindergarten und Supermarkt - befinden sich nur einen Katzensprung entfernt. Auch Bankfilialen sowie Bus- und Bahnhaltestellen sind bequem erreichbar und garantieren eine optimale Anbindung sowie höchste Lebensqualität.

Weitere Informationen

Stichworte Carport vorhanden, Fahrradraum, Anzahl der Badezimmer: 1, Anzahl der separaten WCs: 2, Anzahl Terrassen: 3, Balkon-Terrassen-Fläche: 120,00 m², Kellerfläche: 90,00 m², Bundesland: Steiermark, 2 Etagen, modernisiert

Weitere Services

Lust auf eine Besichtigung?
Eine Frage zur Immobilie?
Nachricht hinzufügen
Mit der Nutzung der oben angegebenen Telefonnummer oder durch Klicken auf „Kontaktieren“ akzeptierst Du die Allgemeinen Nutzungsbedingungen, denen Du jederzeit widersprechen kannst. Weitere Informationen zum Datenschutz

Über den Anbieter

Neubaugasse 107, 8020 GRAZ
partner badge
3 Jahre Partnerschaft
Frau Heidi StelzerDein Kontakt
Online-ID: 2nkte5e
Referenznummer: OBGC2026012916531043954626eb7d8
Immo Circle GesbR
Nachricht hinzufügen
Mit der Nutzung der oben angegebenen Telefonnummer oder durch Klicken auf „Kontaktieren“ akzeptierst Du die Allgemeinen Nutzungsbedingungen, denen Du jederzeit widersprechen kannst. Weitere Informationen zum Datenschutz
Wie zufrieden bist du mit dieser Seite (nicht mit der Immobilie selbst)?