

Philipp Zimmermann Immobilien GmbH & Co. KG
Herr Philipp Zimmermann
+49 ···
Nr. anzeigenPreise & Kosten
Provision für Käufer
3,57% inkl. 19% Mehrwertsteuer
Lage
Diese Gastronomie- / Gewerbefläche liegt in zentraler Lage des alten Ortskern der Gemeinde "Gailingen" am Hochrhein.
"Gailingen" gehört mit seinen ca. 2.850 Einwohnern zu den südlichsten Gemeinden Deutschlands, ziemlich genau zwischen den Schweizer Touristikmetropolen Stein am Rhein und dem Rheinfall bei...
Gastronomie/Hotel
Kategorie
Café/Bar
Baujahr
1991
Bezug
Herbst 2024 nach Absprache
Energie & Heizung
Warum sehe ich diese Anzeige? – Du siehst diese Anzeige basierend auf Ihrer Navigation auf unserer Website und den Suchkriterien, die du verwendet hast.
Wärme
Energieausweistyp
Verbrauchsausweis
Gebäudetyp
Nicht-Wohngebäude
Baujahr laut Energieausweis
1991
Gültigkeit
bis 18.10.2028
Endenergieverbrauch (Wärme)
174,00 kWh/(m²·a) - Warmwasser enthalten
Weitere Energiedaten
Energieträger
Gas
Heizungsart
Zentralheizung
Details
Objektbeschreibung
Dieses Wohn- und Geschäftshaus stammt ca. aus dem Jahr 1900 und wurde im Jahr 1991 komplett saniert und neu aufgeteilt. Hierbei wurden alle Leitungen, Installationen etc. erneuert.
Über eine Gas-Zentralheizung aus dem Jahr 1991 werden die Einheiten beheizt.
Diese Gewerbefläche kann als Café / Bistro etc. weiter...
Ausstattung
Das original italienische Eiscafé ist voll ausgestattet und das gesamte Inventar inkl. Bestuhlung, Thekenanlage, Eistheke, Kaffeemaschine, Eisküche etc. ist im Kaufpreis enthalten.
Preisinformation
1 Carportplatz
Weitere Informationen
Sonstiges
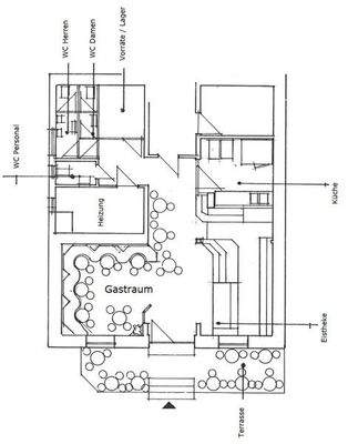
Die reine Gewerbe- / Gastronomiefläche im Erdgeschoss beläuft sich auf ca. 76,54 m² zzgl. Terrassenfläche.
Die genaue Raumaufteilung entnehmen Sie bitte beigefügtem Grundrissplan.
Der Endenergieverbrauch des Gebäudes beträgt 174 kWh/(m² a) - Energieeffizienzklasse F.
Zur Gewerbeeinheit ist...
Anbieter der Immobilie
Philipp Zimmermann Immobilien GmbH & Co. KG
Leinerstraße 20, 78462 Konstanz

Online-ID: 2e9ak5u
Referenznummer: E-273
Finde Angebote wie dieses
Hier geht es zu unserem Impressum, den Allgemeinen Geschäftsbedingungen, den Hinweisen zum Datenschutz und nutzungsbasierter Online-Werbung.