

Nickel Immobilien GmbH
Frau Mareike Mechtel
033 ···
Nr. anzeigenPreise & Kosten
Kaution
3 Bruttowarmmieten
Provision für Mieter
provisionsfrei
Warum sehe ich diese Anzeige? – Du siehst diese Anzeige basierend auf Ihrer Navigation auf unserer Website und den Suchkriterien, die du verwendet hast.
Lage
Potsdam ist mit gut 170.000 Einwohnern die bevölkerungsreichste Stadt des Landes Brandenburg. Berlin, Werder und Brandenburg an der Havel sind im Nu erreichbar - somit ist Potsdam ein idealer Standort für Gewerbetreibende.
In unmittelbarer Nachbarschaft haben sich bereits namhafte Unternehmen angesiedelt. Große...
Büro-/Praxisfläche
Kategorie
Bürofläche
Baujahr
1993
Bezug
ab sofort
Energie & Heizung
Warum sehe ich diese Anzeige? – Du siehst diese Anzeige basierend auf Ihrer Navigation auf unserer Website und den Suchkriterien, die du verwendet hast.
Wärme
Strom
Energieausweistyp
Verbrauchsausweis
Gebäudetyp
Nicht-Wohngebäude
Wesentliche Energieträger
OEL
Gültigkeit
bis 19.02.2025
Endenergieverbrauch (Wärme)
187,40 kWh/(m²·a) - Warmwasser enthalten
Endenergieverbrauch (Strom)
44,40 kWh/(m²·a) - Warmwasser enthalten
Weitere Energiedaten
Energieträger
Öl
Heizungsart
Zentralheizung
Details
Objektbeschreibung
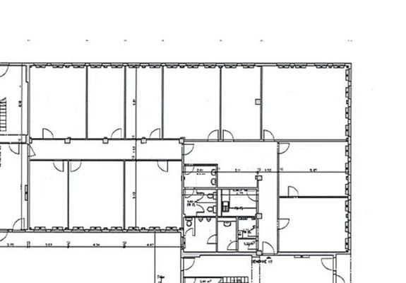
Die zur Vermietung stehende Bürofläche befindet sich im Erdgeschoss eines Gewerbeobjektes am Verkehrshof 17 in Potsdam.
Die Einheit ist von 2 Eingängen zugängig und hat eine Größe von insgesamt ca. 335,50 m². Neben einer Teeküche und sanitären Einrichtungen für Damen und Herren gibt es insgesamt 8 Büroräume und 2...
Weitere Informationen
Sonstiges
Es liegt ein Energieverbrauchsausweis vor.
Dieser ist gültig bis 19.2.2025.
Endenergieverbrauch beträgt 187.40 kwh/(m²*a).
Wesentlicher Energieträger der Heizung ist Öl.
Wir hoffen, Ihnen ein interessantes Angebot unterbreitet zu haben und freuen uns auf Ihren Anruf oder Ihre...
Anbieter der Immobilie
Nickel Immobilien GmbH
Geschwister-Scholl-Str. 36, 14776 Brandenburg

Online-ID: 2eatf5g
Referenznummer: mm1865
Finde Angebote wie dieses
Hier geht es zu unserem Impressum, den Allgemeinen Geschäftsbedingungen, den Hinweisen zum Datenschutz und nutzungsbasierter Online-Werbung.