
IF Group AG
Team Vermietung Freiberg
+ 4 ···
Nr. anzeigenPreise & Kosten
Kaution
3 Monatskaltmieten
Warum sehe ich diese Anzeige? – Du siehst diese Anzeige basierend auf Ihrer Navigation auf unserer Website und den Suchkriterien, die du verwendet hast.
Lage
Die Gemeinde Drebach gehört zum Erzgebirgskreis in Sachsen. Derzeit leben im Ortsteil Drebach ca. 5.045 Einwohner (Stand 31.12.2022). Chemnitz liegt ca. 23 km nördlich der Gemeinde und ist in ca. 30 min. mit dem Fahrzeug über die B 174 zu erreichen.
Drebach ist auch weit über die Grenzen des Erzgebirges hinaus bekannt für...
Die Wohnung
Derzeitige Nutzung
frei
Wohnanlage
Energie & Heizung
Warum sehe ich diese Anzeige? – Du siehst diese Anzeige basierend auf Ihrer Navigation auf unserer Website und den Suchkriterien, die du verwendet hast.
Energieausweistyp
Bedarfsausweis
Gebäudetyp
Wohngebäude
Baujahr laut Energieausweis
1989
Wesentliche Energieträger
Erdgas
Gültigkeit
19.10.2018 bis 18.11.2028
Effizienzklasse
C
Endenergiebedarf
77,30 kWh/(m²·a)
Weitere Energiedaten
Energieträger
Gas
Heizungsart
Zentralheizung
Details
Objektbeschreibung
Objektbeschreibung
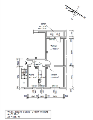
Die frisch renovierte 2 Raum-Wohnung befindet sich im 2. Obergeschoss
in einem Mehrfamilienhaus mit 24 Wohnungen und 3 Hauseingängen.
Nur wenige Gehminuten vom Gebäudekomplex entfernt befindet sich
eine Kindereinrichtung, Grundschule und Turnhalle sowie Einkaufsmöglichkeiten. Eine...
Weitere Informationen
Besichtigungstermine
Bei Interesse vereinbaren Sie gern einen Besichtigungstermin mit uns.
Hinterlassen Sie Ihre Anschrift sowie Telefonnummer und wir werden uns umgehend mit Ihnen in Verbindung setzen.
Hinweise zum Datenschutz unter https://www.ifgruppe.com/impressum-datenschutz.
Mit Ihrer Kontaktanfrage...
Anbieter der Immobilie
IF Group AG
Oberes Muldental 2, 09599 Freiberg
Online-ID: 2eb4f58
Finde Angebote wie dieses
Hier geht es zu unserem Impressum, den Allgemeinen Geschäftsbedingungen, den Hinweisen zum Datenschutz und nutzungsbasierter Online-Werbung.