Version: 8.25.1Navigation überspringen
885.000 €
4 Zimmer  •  161 m²  •  EG  •  frei ab 30.11.2026
Immowelt logo

Wohnung zum Kauf - Erstbezug • provisionsfrei
885000 €
5.497 €/m²
4 Zimmer  •  161 m²  •  EG  •  frei ab 30.11.2026

NEUBAU EG am karibischen Strand "Es Trenc" auf Mallorca

Diese Wohnung befindet sich im EG in einer DESIGNER-BLOCK-ANLAGE im Süden der Insel von Mallorca, in der wunderschönen Gegend vom karibischen Strand "Es Trenc" in der Gemeinde Colonia de Sant Jordi mit dem traumhaften und weitläufigen Sandstrand und dem kristallklarem Wasser,

All dies macht Ihr Zuhause am Meer zu einem idealen Ort, um die Küste Mallorcas und ihre wunderschöne Natur zu genießen.

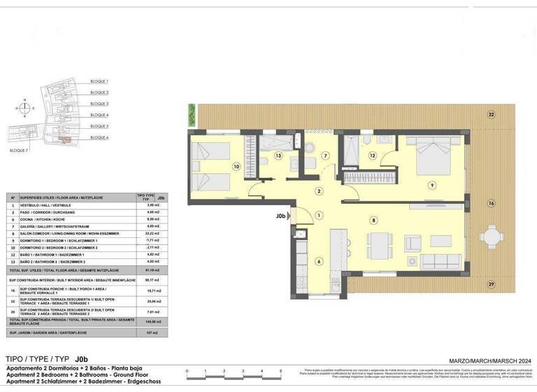
Diese Designer-EG-Wohnung beinhaltet 2 Schlafzimmer und 2 Bäder und umfasst einen Außen- und/oder Tiefgaragenstellplatz.

Hightlight ist die 51 m2 große Terrasse in Süd-Lage und der 157 m2 große Garten

Die Wohnanlage ist umzäunt, was Ihnen und Ihrer Familie mehr Sicherheit bietet.

Genießen Sie die ausgezeichneten
Gemeinschaftsbereiche mit:
Swimmingpool für Erwachsene und Kinder,
Whirlpool,
Grünflächen und Wegen im Innenbereich.

Die Wohnanlage ist herrlich nach Süden ausgerichtet und hebt sich durch ihr innovatives Design LUXERIÖS von ihrer Umgebung ab.

Die Wohnung ist so konzipiert, dass sie das natürliche Licht und die Belüftung dank ihrer großen Glastüren optimal nutzen, die vom Wohnzimmer und dem Hauptschlafzimmer aus Zugang zu den Balkonen oder Terrassen bieten.

Merkmale

  • frei ab 30.11.2026
  • Erdgeschoss
  • Haustiere erlaubt
  • Einbauküche, offene Küche
  • Personenaufzug
  • Garage

Grundrisse

Grundrisse
1 / 2

Realisiere Dein Projekt

Bausubstanz und Energie

Möchtest du Details zum Energieverbrauch?info_energy_calculation-icon
  • Baujahr2024
  • Zustand der ImmobilieErstbezug
  • HeizungsartFußbodenheizung
Immowelt logo

Preisdetails

Kaufpreis
885000 €
5.496,89 €/m²
Provision für Käufer
provisionsfrei
Weitere Preisinformationen
1 Garagenstellplatz

Lage

address-icon
Colonia de Sant Jordi (07638)
Der Anbieter hat die genaue Adresse nicht freigegeben
Die Neubau-Anlage befindet sich im idyllischen Colonia de Sant Jordi im Süden Mallorcas, unweit der malerischen Salinen von S Avall. Nur 300 Meter entfernt erstrecken sich die Strände Els Estanys und Es Trenc, die mir ihrem kristallklaren, türkisfarbenen Wasser, feinem weißen Strand, sowie den
umgebenden Dünen und Pinienwäldern verzaubern.

Colonia de Sant Jordi zählt zu den reizvollsten Orten Mallorcas und ist traditionell für seine Fischereikultur bekannt. Heute begeistert der Ort zudem mit atemberaubenden Ausblicken auf die
in charakteristischem Rosa schimmernden Salinen von S Avall und die vorgelagerte Insel Cabrera.
Hier können Sie sich von der betörenden Schönheit der Sonnenuntergänge in den Bann ziehen lassen.

Eine Küstenpromenade führt entlang der malerischen Küste von Colonia de Sant Jordi und bietet
neben einem Hafen eine Vielzahl an Dienstleistungen und Freizeitmöglichkeiten. Dazu gehören
Restaurant, Supermärkte, eine Schule, Autovermietungen und ein wöchentlicher Markt, auf
dem Lebensmittel, Blumen, Bekleidung und Kunsthandwerk angeboten werden. Dieses charmante Dorf versprüht einen unvergleichlichen Charme.

Die NEUBAU-ANLAGE lädt Sie ein, das mediterrane Leben in seiner reinsten Form zu genießen.

Weitere Informationen

Sonstiges Die NEUBAU-Anlage besteht aus 28 Wohnungen in 7 Blocks bestehend aus EG-, Etagen- und Penthouse-Wohnungen mii jeweils 2 oder 3 Schlafzimmern.

Die Wohnungen werden fertig gestellt zum November 2026.

Sichern Sie sich jetzt eine LUXUS-Wohnung und bezahlen Sie diese erst im November 2026!!! Stichworte Rolladen, Nutzfläche: 233,00 m², Grundstücksfläche: 214,00 m², Anzahl der Schlafzimmer: 3, Anzahl der Badezimmer: 3, Balkon-Terrassen-Fläche: 72,00 m², 2 Etagen, Distanz vom Zentrum: 100.00, Distanz zum Meer: 100.00

Weitere Services

Lust auf eine Besichtigung?
Eine Frage zur Immobilie?
Nachricht hinzufügen
Mit der Nutzung der oben angegebenen Telefonnummer oder durch Klicken auf „Kontaktieren“ akzeptierst Du die Allgemeinen Nutzungsbedingungen, denen Du jederzeit widersprechen kannst. Weitere Informationen zum Datenschutz

Über den Anbieter

Ronda del Oeste N°76, 07680 MANACOR - PORTO CRISTO
partner badge
Partnerschaft
Walter Hüther
Walter HütherDein Kontakt
Online-ID: 24D7QIWD6M7L
Referenznummer: 24-075
HUETHER & PARTNER SLU
title
HUETHER & PARTNER SLU
Nachricht hinzufügen
Mit der Nutzung der oben angegebenen Telefonnummer oder durch Klicken auf „Kontaktieren“ akzeptierst Du die Allgemeinen Nutzungsbedingungen, denen Du jederzeit widersprechen kannst. Weitere Informationen zum Datenschutz
Wie zufrieden bist du mit dieser Seite (nicht mit der Immobilie selbst)?