




1 / 20



1 / 20

Praxisfläche zur Miete • provisionsfrei13,70 €/m²327,1 m² Bürofläche • teilbar ab 327,1 m²
13,70 €
/m²
327,1 m² Bürofläche • teilbar ab 327,1 m²
Ärzte- und Gesundheitshaus Rimsting * Fertigstellung in Kürze
GEWERBEHAUS NORDSTRASSE
#Programm und Nutzung
Das Gewerbehaus an der Nordstraße bietet Platz für insgesamt 6 Nutzungseinheiten und unterschiedlichste Betriebsformen und Firmengrößen. Die effiziente Grundrissgestaltung ermöglicht die Umsetzung zwei verschiedener Grundrisskonzepte, zwischen 360 m² und 740 m². Die Reduktion des Rohbaus auf eine minimale Grundfläche erlaubt sowohl eine offene als auch geschlossene Raumgestaltung, wodurch das Gebäude vielseitigen Anforderungen gerecht wird. Es besteht zusätzliche die Möglichkeit zur Anpassung des Innenausbaukonzeptes nach individuellen Wünschen und Anforderungen.
#Architektur und Gestaltung
Der Gebäudekomplex an der Nordstraße erstreckt sich über drei Vollgeschosse und bindet sich stirnseitig in das abschüssige Terrain ein. Die Erschließung der Liegenschaft erfolgt barrierefrei von Norden oder über eine weitläufige Treppe entlang der Westfassade.
Der Zugang befindet sich in der Mittelachse des Gebäudes und führt über einen Windfang in die großzügige Eingangshalle, welche zusätzlich als Anlieferungs- und Verteilerraum fungiert. Die vertikale Zirkulation erfolgt über ein zentrales Treppenhaus mit dazugehörigem Aufzug. In Verlängerung der Treppe gliedern sich Toiletten, Stauräume und Küchen in die Kernstruktur ein.
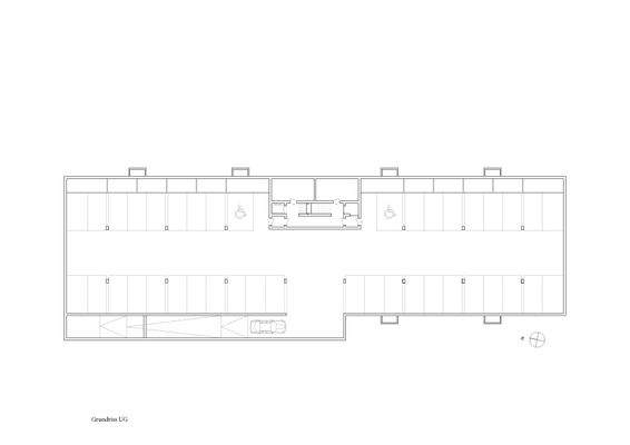
Darüber hinaus verfügt die Immobilie über eine Tiefgarage, welche ebenfalls über die Nordstraße erschlossen wird. Neben 10 oberirdischen Stellplätzen bietet diese 40 weitere Parkplätze für Besucher und Mitarbeiter.
#Konstruktion und Material
Das Gebäude ist in hybrider Bauweise konzipiert. Ein Skelett aus Stahlbeton bildet die Grund- und tragstruktur der Architektur, während die Hülle des Gebäudes aus einer massiven Holzkonstruktion besteht. Dreifach pigmentiertes Tannenholz schützt die Fassade vor Witterungseinflüssen und erzeugt das charakteristische, schwarze Erscheinungsbild des Hauses. Die Bandfenster-Fassade mit großflächigen Verglasungselementen flutet den Innenraum allseitig mit Tageslicht.
#Energie und Nachhaltigkeit
Das Heizen und Kühlen der Liegenschaft wird über eine Betonkernaktivierung und optional über Deckensegel in den Aufenthaltsräumen gelöst. Die Temperierung der Innenräume erfolgt saisonal üblicherweise von Juni bis Oktober. Die natürliche Belüftung wird durch öffenbare Fensterelemente in der Fassade gewährleistet.
Zur Förderung der E-Mobilität und der nachhaltigen Energiegewinnung werden natürliche Ressourcen verwendet. Das gesamte Heizsystem und PKW-Ladestationen unterstützen ganzjährig über die gewonnene Solarenergie der Dachfläche, überschüssige Energie wird in das öffentliche Versorgungsnetz eingespeist. Dieses Energiekonzept wird mithilfe von architektonischen Maßnahmen wie Dachüberständen, außenliegenden Rollos und Vorhängen, ergänzt.
#Ausstattung und Innenausbau
Der Innenausbau wird bezugsfertig vom Bauherr erstellt und ist im Basis-Mietpreis enthalten. Die Planung erfolgt in direkter Absprache mit den Mieter*innen. Teil dieses Ausstattungskonzeptes ist ein Hohlraumboden, der für maximale Flexibilität und Anpassbarkeit an die individuellen Anforderungen der Mieterschaft ausgelegt ist. Darüber hinaus umfasst der Innenausbau die Montage von Türen, Beschlägen Beleuchtungen und sanitären Anlagen sowie die Installation von Leichtbauwänden in Gipskarton. Die tragenden Wände und Decken aller Einheiten sind in Sichtbetonqualität ausgeführt und werden nach neuesten Standards für eine langfristige und flexible Nutzbarkeit behandelt. Die Mieterschaft erwartet eine individuelle und hochwertige Ausstattung nach dem neuesten Stand der Technik.
Gerne übersenden wir Ihnen das ausführliche Exposé zu diesem besonderen Bauvorhaben. Wir freuen uns auf Ihre Kontaktaufnahme!
#Programm und Nutzung
Das Gewerbehaus an der Nordstraße bietet Platz für insgesamt 6 Nutzungseinheiten und unterschiedlichste Betriebsformen und Firmengrößen. Die effiziente Grundrissgestaltung ermöglicht die Umsetzung zwei verschiedener Grundrisskonzepte, zwischen 360 m² und 740 m². Die Reduktion des Rohbaus auf eine minimale Grundfläche erlaubt sowohl eine offene als auch geschlossene Raumgestaltung, wodurch das Gebäude vielseitigen Anforderungen gerecht wird. Es besteht zusätzliche die Möglichkeit zur Anpassung des Innenausbaukonzeptes nach individuellen Wünschen und Anforderungen.
#Architektur und Gestaltung
Der Gebäudekomplex an der Nordstraße erstreckt sich über drei Vollgeschosse und bindet sich stirnseitig in das abschüssige Terrain ein. Die Erschließung der Liegenschaft erfolgt barrierefrei von Norden oder über eine weitläufige Treppe entlang der Westfassade.
Der Zugang befindet sich in der Mittelachse des Gebäudes und führt über einen Windfang in die großzügige Eingangshalle, welche zusätzlich als Anlieferungs- und Verteilerraum fungiert. Die vertikale Zirkulation erfolgt über ein zentrales Treppenhaus mit dazugehörigem Aufzug. In Verlängerung der Treppe gliedern sich Toiletten, Stauräume und Küchen in die Kernstruktur ein.
Darüber hinaus verfügt die Immobilie über eine Tiefgarage, welche ebenfalls über die Nordstraße erschlossen wird. Neben 10 oberirdischen Stellplätzen bietet diese 40 weitere Parkplätze für Besucher und Mitarbeiter.
#Konstruktion und Material
Das Gebäude ist in hybrider Bauweise konzipiert. Ein Skelett aus Stahlbeton bildet die Grund- und tragstruktur der Architektur, während die Hülle des Gebäudes aus einer massiven Holzkonstruktion besteht. Dreifach pigmentiertes Tannenholz schützt die Fassade vor Witterungseinflüssen und erzeugt das charakteristische, schwarze Erscheinungsbild des Hauses. Die Bandfenster-Fassade mit großflächigen Verglasungselementen flutet den Innenraum allseitig mit Tageslicht.
#Energie und Nachhaltigkeit
Das Heizen und Kühlen der Liegenschaft wird über eine Betonkernaktivierung und optional über Deckensegel in den Aufenthaltsräumen gelöst. Die Temperierung der Innenräume erfolgt saisonal üblicherweise von Juni bis Oktober. Die natürliche Belüftung wird durch öffenbare Fensterelemente in der Fassade gewährleistet.
Zur Förderung der E-Mobilität und der nachhaltigen Energiegewinnung werden natürliche Ressourcen verwendet. Das gesamte Heizsystem und PKW-Ladestationen unterstützen ganzjährig über die gewonnene Solarenergie der Dachfläche, überschüssige Energie wird in das öffentliche Versorgungsnetz eingespeist. Dieses Energiekonzept wird mithilfe von architektonischen Maßnahmen wie Dachüberständen, außenliegenden Rollos und Vorhängen, ergänzt.
#Ausstattung und Innenausbau
Der Innenausbau wird bezugsfertig vom Bauherr erstellt und ist im Basis-Mietpreis enthalten. Die Planung erfolgt in direkter Absprache mit den Mieter*innen. Teil dieses Ausstattungskonzeptes ist ein Hohlraumboden, der für maximale Flexibilität und Anpassbarkeit an die individuellen Anforderungen der Mieterschaft ausgelegt ist. Darüber hinaus umfasst der Innenausbau die Montage von Türen, Beschlägen Beleuchtungen und sanitären Anlagen sowie die Installation von Leichtbauwänden in Gipskarton. Die tragenden Wände und Decken aller Einheiten sind in Sichtbetonqualität ausgeführt und werden nach neuesten Standards für eine langfristige und flexible Nutzbarkeit behandelt. Die Mieterschaft erwartet eine individuelle und hochwertige Ausstattung nach dem neuesten Stand der Technik.
Gerne übersenden wir Ihnen das ausführliche Exposé zu diesem besonderen Bauvorhaben. Wir freuen uns auf Ihre Kontaktaufnahme!
Merkmale
- Bezug: Nach Vereinbarung
- Personenaufzug
- 6 Stellplätze: 6 Garagen
- Barrierefrei
- Raumaufteilung flexibel
- voll klimatisiert
* Gliederung: Geschlossener Baukörper mit zentraler Erschließung und Tiefgarage
* Außenmauern: Brüstungsband aus Beton (Sichtbeton im Innenraum) mit hinterlüfteter Holzfassade (schwarz pigmentiert, Schalung horizontal)
* Raumhöhen: EG: 2,75 m | OG1- OG2: 2,75 - 3,90 m
* Fenster: Hochwertige Holzfenster, Aluminium-Deckschale (schwarz)
* Aufzüge: Erschließung aller Stockwerke über einen Personenaufzug (Fa. Schindler)
* Tiefgarage: Einstellhalle für Autos und Fahrräder, Lagerflächen, Erschließung über Zufahrtsrampe, sowie Aufzug und Treppe (innen)
* Sonnenschutz: Außenliegender Textilscreen
* Verkabelung: in Kabelkanälen, EDV-Verkabelung mieterseitig | Datenrate Telekom 1000 Mbit/s (lt. Internet-Auskunft)
* Heizung/Kühlung: Betonkern-Aktivierung, Heizen und Kühlen optional über Deckensegel in den Aufenthaltsräumen, Heizsystem: Luft-Wasser-Wärmepumpe
* Klingelanlage: Sprech- und Klingelanlage an Eingangstür
* Sicherheitstechnik: Zentrale Schließanlage
* Briefkasten: Briefkastenanlage im Außenbereich (Haupteingang)
* Anlieferung: Anlieferzone entlang der Westseite des Gebäudes (Haupteingang), Befahrbarkeit bis 7,5 Tonnen
* Stellplätze: Insgesamt 10 oberirdische Stellplätze (4 davon rollstuhlgerecht) auf der Nord- und Südseite des Gebäudes
* Treppenanlage: Zentraler Zugang über Treppenanlage vor dem Eingang, zusätzliche Erschließung über Treppe im Süden und PKW bzw. LKW-Zufahrt ( bis 7,5 Tonnen) entlang der Westseite
* Photovoltaik Vollflächige PV-Anlage auf dem Dach, Anschlussmöglichkeit für E-Ladestationen in der Tiefgarage vorhanden (jeder 3. Stellplatz)
* Haupteingang : Zentrale Eingangshalle, Wände aus Sichtbeton, Verbindung zum Treppenhaus (1.UG-2.OG) und Zugang zu den Mieteinheiten im Erdgeschoss, zweiflügliges Portal mit elektrischem Türöffner und Schmutzfangmatte
* Außenmauern: Brüstungsband aus Beton (Sichtbeton im Innenraum) mit hinterlüfteter Holzfassade (schwarz pigmentiert, Schalung horizontal)
* Raumhöhen: EG: 2,75 m | OG1- OG2: 2,75 - 3,90 m
* Fenster: Hochwertige Holzfenster, Aluminium-Deckschale (schwarz)
* Aufzüge: Erschließung aller Stockwerke über einen Personenaufzug (Fa. Schindler)
* Tiefgarage: Einstellhalle für Autos und Fahrräder, Lagerflächen, Erschließung über Zufahrtsrampe, sowie Aufzug und Treppe (innen)
* Sonnenschutz: Außenliegender Textilscreen
* Verkabelung: in Kabelkanälen, EDV-Verkabelung mieterseitig | Datenrate Telekom 1000 Mbit/s (lt. Internet-Auskunft)
* Heizung/Kühlung: Betonkern-Aktivierung, Heizen und Kühlen optional über Deckensegel in den Aufenthaltsräumen, Heizsystem: Luft-Wasser-Wärmepumpe
* Klingelanlage: Sprech- und Klingelanlage an Eingangstür
* Sicherheitstechnik: Zentrale Schließanlage
* Briefkasten: Briefkastenanlage im Außenbereich (Haupteingang)
* Anlieferung: Anlieferzone entlang der Westseite des Gebäudes (Haupteingang), Befahrbarkeit bis 7,5 Tonnen
* Stellplätze: Insgesamt 10 oberirdische Stellplätze (4 davon rollstuhlgerecht) auf der Nord- und Südseite des Gebäudes
* Treppenanlage: Zentraler Zugang über Treppenanlage vor dem Eingang, zusätzliche Erschließung über Treppe im Süden und PKW bzw. LKW-Zufahrt ( bis 7,5 Tonnen) entlang der Westseite
* Photovoltaik Vollflächige PV-Anlage auf dem Dach, Anschlussmöglichkeit für E-Ladestationen in der Tiefgarage vorhanden (jeder 3. Stellplatz)
* Haupteingang : Zentrale Eingangshalle, Wände aus Sichtbeton, Verbindung zum Treppenhaus (1.UG-2.OG) und Zugang zu den Mieteinheiten im Erdgeschoss, zweiflügliges Portal mit elektrischem Türöffner und Schmutzfangmatte
Realisiere Dein Projekt
Bausubstanz und Energie
Der Anbieter hat keine Informationen zum Energieverbrauch bereit gestellt.
- Baujahr2024
- Zustand der ImmobilieProjektiert
Mietkosten
Nettomiete zzgl. Nebenkosten
13,70 €/m²
4.481 €
Zusätzliche Kosten
Miete pro Stellplatz
60 €
Provision für Mieter
provisionsfrei
Kaution
3 Monatskaltmieten
Weitere Preisinformationen
6 Garagenstellplätze, Miete je: 60,00 EUR
Nebenkosten pro qm: 2,50 EUR
Nebenkosten pro qm: 2,50 EUR
Lage

Rimsting (83253)
Der Anbieter hat die genaue Adresse nicht freigegeben
#Standort
Der oberbayerische Luftkurort Rimsting befindet sich im Landkreis Rosenheim, in unmittelbarer Nähe zum Chiemsee, zwischen den Kurorten Prien am Chiemsee (3 km) und Bad Endorf (5 km). Rimsting liegt im Herzen der Euregio Inntal - Chiemsee - Kaisergebirge - Mangfalltal und somit im Zentrum der "Super-Region Alpine Arc", die das gesamte deutsche, österreichische und italienische Alpengebiet umfasst. Die Europäische Kommission beurteilt diesen Raum als wirtschaftlich stärkste Super-Region der EU.
Mit dem Neubau an der Nordstraße entsteht ein weiteres Betriebsgebäude im Gewerbeareal Rimsting, unweit des Chiemsees, das durch Autobahn, Schienenverkehr und die Nähe zu internationalen Flughäfen über eine sehr gute Verkehrsanbindung verfügt. Zusammen mit der neuentstandenen Graber GmbH bildet es ein Ensemble, das den Beginn der Entwicklung des Gewerbegebietes Rimsting markiert.
#Anbindung
* ca. 12 Autominuten zum Autobahnanschluss Bernau am Chiemsee
* ca. 82 Autominuten zum Flughafen München
* ca. 48 Autominuten zum Flughafen Salzburg
* ca. 8 Fahrminuten zum Bahnhof Prien am Chiemsee
* ca. 5 Fahrminuten zum Bahnhof Bad Endorf
* ca. 62 Fahrminuten vom Hauptbahnhof München nach Prien am Chiemsee
Der oberbayerische Luftkurort Rimsting befindet sich im Landkreis Rosenheim, in unmittelbarer Nähe zum Chiemsee, zwischen den Kurorten Prien am Chiemsee (3 km) und Bad Endorf (5 km). Rimsting liegt im Herzen der Euregio Inntal - Chiemsee - Kaisergebirge - Mangfalltal und somit im Zentrum der "Super-Region Alpine Arc", die das gesamte deutsche, österreichische und italienische Alpengebiet umfasst. Die Europäische Kommission beurteilt diesen Raum als wirtschaftlich stärkste Super-Region der EU.
Mit dem Neubau an der Nordstraße entsteht ein weiteres Betriebsgebäude im Gewerbeareal Rimsting, unweit des Chiemsees, das durch Autobahn, Schienenverkehr und die Nähe zu internationalen Flughäfen über eine sehr gute Verkehrsanbindung verfügt. Zusammen mit der neuentstandenen Graber GmbH bildet es ein Ensemble, das den Beginn der Entwicklung des Gewerbegebietes Rimsting markiert.
#Anbindung
* ca. 12 Autominuten zum Autobahnanschluss Bernau am Chiemsee
* ca. 82 Autominuten zum Flughafen München
* ca. 48 Autominuten zum Flughafen Salzburg
* ca. 8 Fahrminuten zum Bahnhof Prien am Chiemsee
* ca. 5 Fahrminuten zum Bahnhof Bad Endorf
* ca. 62 Fahrminuten vom Hauptbahnhof München nach Prien am Chiemsee
Weitere Informationen
Sonstiges
Gerne stellen wir Ihnen diese außergewöhnliche Immobilie näher vor. Rufen Sie uns an oder schreiben uns. Wir freuen uns auf Sie!
Sämtliche Visualierungen der Gewerbeeinheiten sowie des Gesamtgebäudes und der Umgebung sind unverbindiche Darstellungen aus der Sicht des Illustrators. Stichworte Tiefgarage vorhanden, Lage im Gewerbegebiet
Sämtliche Visualierungen der Gewerbeeinheiten sowie des Gesamtgebäudes und der Umgebung sind unverbindiche Darstellungen aus der Sicht des Illustrators. Stichworte Tiefgarage vorhanden, Lage im Gewerbegebiet
Weitere Services
Lust auf eine Besichtigung?
Eine Frage zur Immobilie?
Über den Anbieter
Online-ID: 2ecl65d
Referenznummer: 7421#ZRODuS
Wie zufrieden bist du mit dieser Seite (nicht mit der Immobilie selbst)?


