

Claudia Rinaldi Immo
Frau Claudia Rinaldi
003 ···
Nr. anzeigenPreise & Kosten
Provision für Käufer
Bitte beachte, das Angebot beinhaltet bei Vertragsabschluss die Zahlung einer Provision. Weitere Informationen erhältst Du vom Anbieter.
Die Wohnung
Wohnanlage
Energie & Heizung
Warum sehe ich diese Anzeige? – Du siehst diese Anzeige basierend auf Ihrer Navigation auf unserer Website und den Suchkriterien, die du verwendet hast.
Weitere Energiedaten
Haustyp
KfW 55
Heizungsart
Fußbodenheizung, Luft-/Wasser-Wärmepumpe
Details
Objektbeschreibung
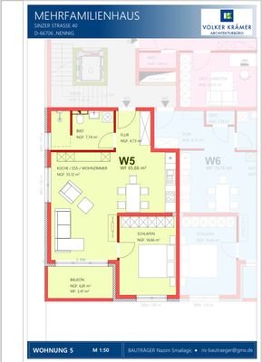
Obergeschosswohnung (Wohnung NR 5)
-65,66 m2 Wohnfläche
-Großer offener Ess-Wohn-Küchenbereich mit Ausgang zum Balkon
- Schlafzimmer
-Badezimmer
-Kellerraum
-Tiefgaragenstellplatz (+25.000 €)
Perl-Nennig
Neubau-Residenz Sinzerstraße 500 Meter von L-Remich
In zentraler Lage...
Weitere Informationen
Stichworte
Sonstiges/Wohnen: seniorengerechtes Wohnen
Versorgung: Städtische Wasserversorgung, Städtische Stromversorgung
Sonstiges: ISDN, Analog
Dokumente
Anbieter der Immobilie
Claudia Rinaldi Immo
Saarbrückerstrasse 9a, 66706 Sinz

Online-ID: 2ed4k5m
Finde Angebote wie dieses
Hier geht es zu unserem Impressum, den Allgemeinen Geschäftsbedingungen, den Hinweisen zum Datenschutz und nutzungsbasierter Online-Werbung.