Version: 8.24.0Navigation überspringen
2.250.000 €
4.276,5 m² Grundstück
Immowelt logo

Gewerbepark zum Kauf • provisionsfrei
2250000 €
526 €/m²
4.276,5 m² Grundstück

Gewerbepark in zentraler Lage von Bremen // Mietsteigerungspotenzial // vielseitige Nutzungsmöglichkeiten

Im Bremer Stadtteil Neustadt bieten wir einen Gewerbehof mit 50 Mieteinheiten zum Kauf an.

Das ca. 4.276,5 m² große Gewerbegrundstück befindet sich in zweiter Reihe einer Hauptstraße im Ortsteil Huckelriede.
Durch eine Durchfahrt unterhalb eines Wohnhauses erreicht man das Grundstück.
Auf sechs Baukörper ist eine Nutzfläche von ca. 5.024,3 m² verteilt. Die vermietete Fläche beläuft sich auf ca. 4.427,28 m² (100 %).

Das Gesamtobjekt wurde stetig gepflegt und instand gehalten, sodass die technische Gebäudeausrüstung in einem guten Zustand ist. Energiewerte entnehmen Sie bitte dem entsprechenden Punkt in der Ausstattungsbeschreibung.

Es ergeben sich für dieses Gewerbehof diverse Nutzungsmöglichkeiten. Neben der Entwicklung der sehr niedrigen Mieten auf ein angemessenes Niveau, kann auch die gesamte Neuentwicklung des Grundstücks durch Abriss und Neubau interessant werden.

Merkmale

  • Bezug: nach Absprache
  • vermietet
  • 4.276,5 m² Grundstück
  • Kelleranteil
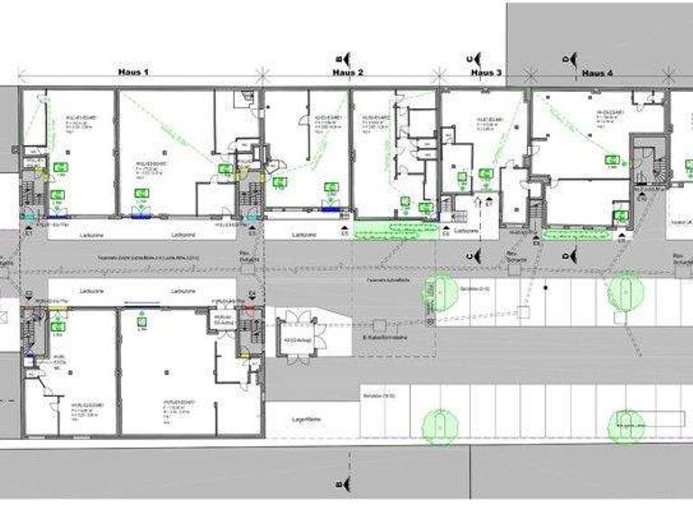
A. Gewerbehof
. 4.276,5 m² Grundstücksgröße
. 5.024,3 m² Nutzfläche
. 4.427,28 m² vermietete Gewerbefläche (100 %) - 6.057 m² BGF
. 6 Baukörper
. 15 Eingänge
. 2 Lastenaufzüge
. 4 Heizungsanlagen (Öl)
. Parkplätze im Hof in ausreichender Anzahl


B. Mieteinheiten
. 50 Mieteinheiten (zum aktuellen Zeitpunkt vollvermietet) - Mietflächen zwischen 4 - 270 m²
. Mietpreis durchschnittlich 3,47 €/m²
. Jahres-Nettokaltmiete ca. 184.500 € (teilweise zzgl. USt.) - Werte können sich durch Mieterwechsel mtl. ändern
. teilweise mit USt. vermietet
. Mietdauer: Alle Mieter sind binnen eines Jahres kündbar.


C. Flächen
. Haus 1 (Bj. 1961), ca. 2.095,24 m², davon
ca. 1.813,28 m² vermietbare Gewerbefläche und ca. 281,96 m² Verkehrswege
. Haus 2 (Bj. 1968), ca. 894,69 m², davon
ca. 784,44 m² vermietbare Gewerbefläche und ca. 110,25 m² Verkehrswege
. Haus 3 (Bj. zw. 1968 - 1974), ca. 361,99 m², davon ca. 346,17 m² vermietbare Gewerbefläche und
ca. 15,82 m² Verkehrswege
. Haus 4 (Bj. 1974), ca. 353,89 m², davon
ca. 310,96 m² vermietbare Gewerbefläche und ca. 42,93 m² Verkehrswege
. Haus 5 (Bj. 1980), ca. 488,88 m², davon
ca. 414,79 m² vermietbare Gewerbefläche und ca. 74,09 m² Verkehrswege
. Haus 6 (Bj. 2000 Neuaufgebaut nach Brand), ca. 828,66 m², davon ca. 757,64 m² vermietbare Gewerbefläche und
ca. 71,02 m² Verkehrswege


D. Sanierungsstand
. Fenster teilweise Holz 1-fach verglast, teilweise Kunststoff 2-fach verglast
. 4 Heizungsanlagen (Öl) von
2011 (Wolf),
2010 (Wolf),
2000 (Wolf),
2023 (Viessmann)
. Elektrik entsprechend der Nutzung stetig erneuert
. Dach teilweise Blechfalz, teilweisse Bitumen
. Objekt in Teilbereichen renovierungsbedürftig


E. Bestimmungen des Bebauungsplans bp00561
. Gewerbegebiet
. 2 Vollgeschosse
. geschlossene Bauweise - GRZ: 0,8
. GFZ: 1,2
Bitte beachten Sie das beigefügte Schreiben der Feuerwehr. Alle Angaben sind ohne Gewähr und vom Interessenten eigenständig zu prüfen.

Grundrisse

Grundrisse
1 / 4

Realisiere Dein Projekt

Bausubstanz und Energie

Der Anbieter hat keine Informationen zu Energieverbrauch oder Zustand der Immobilie bereit gestellt.
Immowelt logo

Preisdetails

Kaufpreis
2250000 €
526,13 €/m²
Provision für Käufer
provisionsfrei
Geschätzte Gesamtkosten
2.250.000 €1
Kaufpreis
2.250.000 €
1Der angezeigte Wert ist eine automatisch berechnete Schätzung von immowelt.

Lage

address-icon
HuckelriedeBremen (28201)
Der Anbieter hat die genaue Adresse nicht freigegeben
Der Gewerbehof liegt in einer ruhigen und dennoch gut erreichbaren Gegend von Huckelriede. Diese Region zeichnet sich durch ihre vielseitige Wirtschaftsstruktur und ihre Nähe zu wichtigen Verkehrsadern aus. Ein großer Pluspunkt für Unternehmen, die nach einem geeigneten Standort suchen.
Mit seiner günstigen Lage und den zahlreichen Vorteilen der gewerblichen Nutzung ist dieser Standort eine erstklassige Wahl für Unternehmen verschiedener Branchen.

Die Autobahnanbindung ist einer der entscheidenden Vorteile dieses Gewerbehofs. Innerhalb weniger Minuten erreichen Sie über die nahe- gelegene Autobahn A1 das überregionale Autobahnnetz. Dies ermög- licht einen schnellen und bequemen Zugang zu wichtigen Geschäftspartnern, Kunden und Lieferanten in ganz Deutschland. Auch der Bremer Flughafen ist nur eine kurze Fahrt entfernt, was Geschäftsreisen und den Transport von Waren erleichtert. Dies macht diesen Standort für Gewerbetreibende äußerst interessant, sodass hier kein Leerstand zu erwarten ist.

Weitere Informationen

Sonstiges Alle Angaben sind ohne Gewähr und basieren ausschließlich auf Informationen, die uns von unserem Auftraggeber zur Verfügung gestellt wurden. Wir übernehmen keine Gewähr für die Vollständigkeit, Richtigkeit und Aktualität dieser Angaben.

Das Objekt wird provisionsfrei für den Käufer angeboten.


Der Ansprechpartner für dieses Immobilienangebot ist:

David Mergelmeyer
Selbstständiger Immobilienmakler

+49 421 499 575 60
+49 176 565 322 63
dm@mergelmeyer-immobilien.de Stichworte GRZ: 0,8, GFZ: 1,2, Nutzfläche: 4.427,28 m², Gesamtfläche: 4.427,28 m²

Weitere Services

Lust auf eine Besichtigung?
Eine Frage zur Immobilie?
Nachricht hinzufügen
Mit der Nutzung der oben angegebenen Telefonnummer oder durch Klicken auf „Kontaktieren“ akzeptierst Du die Allgemeinen Nutzungsbedingungen, denen Du jederzeit widersprechen kannst. Weitere Informationen zum Datenschutz

Über den Anbieter

Konsul-Smidt-Straße 8r, 28217 Bremen
partner badge
Partnerschaft
Herr David MergelmeyerDein Kontakt
Online-ID: 2nvse5h
Referenznummer: 2025-118
David Mergelmeyer Immobilien
David Mergelmeyer Immobilien
Bewertung: 3 von 5 Sternen
Nachricht hinzufügen
Mit der Nutzung der oben angegebenen Telefonnummer oder durch Klicken auf „Kontaktieren“ akzeptierst Du die Allgemeinen Nutzungsbedingungen, denen Du jederzeit widersprechen kannst. Weitere Informationen zum Datenschutz
Wie zufrieden bist du mit dieser Seite (nicht mit der Immobilie selbst)?