

Glorit Bausysteme GmbH
Team Verkaufsteam
081 ···
Nr. anzeigenPreise & Kosten
Provision für Käufer
provisionsfrei
Die Wohnung
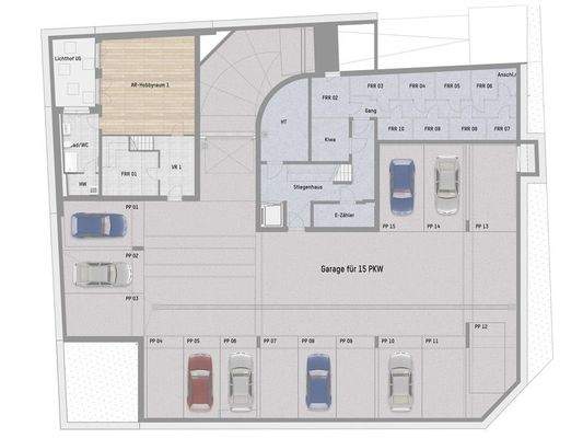
Wohnanlage
Details
Objektbeschreibung
1220 Wien | Brabbeegasse 43 | TOP 2
"Die Kompakte. Mit Garten."
Fassen wir uns kurz und bringen es auf den Punkt: zehn hochwertigst ausgestattete Eigentumswohnungen mit [WNF] und [Zi] Zimmern. Benannt nach dem Stenograph Ewald Brabbee erleben Sie bei diesem Projekt in "seiner" Gasse ganz besondere Lebensqualität...
Weitere Informationen
Stichworte
Anzahl der Badezimmer: 1, Anzahl der separaten WCs: 1, Anzahl Terrassen: 1, Gartenfläche: 27,12 m², Bundesland: Wien
Anbieter der Immobilie
Glorit Bausysteme GmbH
Gloritstraße 2, 2301 Groß-Enzersdorf

Online-ID: 2eeyc5y
Referenznummer: TNR002857
Finde Angebote wie dieses
Günstige Immobilienfinanzierung einfach online berechnen
Persönliches Angebot berechnenWarum sehe ich diese Werbung? – Du siehst diese Werbung basierend auf Deiner Navigation auf unserer Website und der von Dir verwendeten Suchkriterien.
Diese Werbung wird bezahlt von durchblicker
Werbung melden
Hier geht es zu unserem Impressum, den Allgemeinen Geschäftsbedingungen, den Hinweisen zum Datenschutz und nutzungsbasierter Online-Werbung.