Immobilienverwaltung Moro GmbH

Herr Hubert Moro

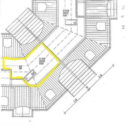
Gemütliche 2 1/2 Zimmer ­ Dachgeschoss Eigentumswohnung mit Galerie u. TG ­ Stellplatz zu vermieten

€ 900
Kaltmiete zzgl. NK
84 m²
Wohnfläche ca.
2,5
Zimmer

Der Anbieter dieses Objekts hat gegenüber der AVIV Germany GmbH als Betreiber dieses Online-Marktplatzes erklärt, nicht als Unternehmer im Sinne des § 1 KSchG zu handeln. Die im Verbraucherschutzrecht der Union verankerten Verbraucherrechte (insbesondere Informationspflichten und Rücktritts- bzw. Widerrufsrechte) finden auf den Vertrag zwischen dem Anbieter des Objekts und Ihnen (dem Interessenten) keine Anwendung.

Gewerblicher Anbieter

Der Anbieter dieses Objekts hat gegenüber der AVIV Germany GmbH als Betreiber dieses Online-Marktplatzes erklärt, als Unternehmer im Sinne des § 1 KSchG zu handeln.

AdresseBrechhausstraße 16a
84048 Mainburg 
Auf Karte ansehen

Preise & Kosten

Kaltmiete € 900 Nebenkosten € 250 Warmmiete € 1.150

Kaution

1.800,00

Lage

Die Stadt Mainburg im Zentrum der Hallertau, die Hopfenmetropole mit ca. 16000 Einwohnern; die Stadt liegt zwischen den Ballungszentren München - Regensburg - Ingolstadt - Landshut und Freising (Flughafen MUC). Sie verfügt neben der Grund- und Hauptschule über ein Mathematisch-Naturwissenschaftliches Gymnasium, eine...

Mehr anzeigen

Die Wohnung

Wohnungslage

2. Geschoss (Dachgeschoss)

Bezug

01.03.2026

  • Bad mit Fenster, Wanne und Dusche
  • Balkon
  • Einbauküche, offene Küche
  • Böden: Estrich, Fliesenboden, Parkett
  • Zustand: gepflegt
  • Weitere Räume: Kelleranteil, Dach ausgebaut, Wasch-Trockenraum
  • Anschlüsse: Kabelanschluss

Wohnanlage

  • Baujahr: 1994
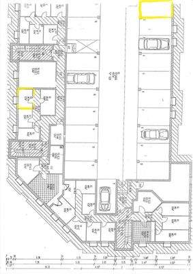
  • 1 Stellplatz: Tiefgarage

Energie & Heizung

0 50 100 150 200 250 300 350 400 +

Energieausweistyp

Verbrauchsausweis

Gebäudetyp

Wohngebäude

Baujahr laut Energieausweis

1994

Wesentliche Energieträger

Erdgaas

Gültigkeit

seit 10.06.2008

Endenergieverbrauch

108,00 kWh/(m²·a) - Warmwasser enthalten

Weitere Energiedaten

Energieträger

Gas

Heizungsart

Zentralheizung

Details

Objektbeschreibung

Durch die Aufteilung ­ ca. 84,00 m² incl. Galerie ­ bietet diese Eigentumswohnung ein attraktives Raumangebot für eine kleine Familie.
Die angebotene Eigentumswohnung liegt in einer gepflegten Wohnanlage.
Zur Wohnung gehören Diele, Bad mit Wanne, Duschkabine, Waschmaschinenanschluss und WC,
EB-Küche, Wohn­...

Mehr anzeigen

Ausstattung

+ Fliesen im Bad und in der Diele
+ Laminat im Wohn-Essbereich,
+ gemütlicher Nord Balkon
+ Nord Balkon Zugang v. Schlafzimmer
+ großzügiges Wohnzimmer mit großer
Fensterfront
+ Bad m. Duschkabine, WC u. WM u.
Trockner Anschluss
+ gepflegte und ruhige Wohnanlage
+ Galerie - Kinderzimmer
+...

Mehr anzeigen

Weitere Informationen

Sonstiges
Impressum:
Immobilien Moro
Dorfstraße 15a
85462 Eittingermoos
Telefon: 08161 871087
Telefax: 08161 871089
E-Mail: immo@moromail.de
Rechtliche Angaben
Registergericht:München
Gesetzlicher Vertreter: Geschäftsführer: Hubert Moro,
Verbraucherinformationen: Online-Streitbeilegung...

Mehr anzeigen

Dokumente

file_pdfGrundriss Brechhausstraße 16aangle_rightfile_pdfEnergieausweis Brechhausstr. 16angle_right

Anbieter der Immobilie

Partner

Immobilienverwaltung Moro GmbH

im Durchschnitt  4,30  Sterne
(bei 9 Bewertungen)

Haydstr. 10, 85354 Freising

user

Herr Hubert Moro

Dein Ansprechpartner

Anbieter-Website Anbieter-Profil Anbieter-Impressum

Online-ID: 2efpj54

Finde Angebote wie dieses

imageimageimage

Hier geht es zu unserem Impressum, den Allgemeinen Geschäftsbedingungen, den Hinweisen zum Datenschutz und nutzungsbasierter Online-Werbung.