
Wüstenrot Immobilien GmbH
Herr Oliver Niemann
004 ···
Nr. anzeigenPreise & Kosten
Provision für Käufer
Pauschalprovision: 3.570 € inkl. MwSt.
Lage
Oelsnitz ist eine große Kreisstadt im sächsischen Vogtland. Sie liegt etwa 400 bis 500 Meter über dem Meeresspiegel und ist eine mittlere Industriestadt am Ufer der Weißen Elster gelegen. Die Stadt bildet einen hervorragenden Ausgangspunkt für Ausflüge ins sächsische, böhmische, bayerische und thüringische Vogtland...
Die Wohnung
Wohnanlage
Energie & Heizung
Warum sehe ich diese Anzeige? – Du siehst diese Anzeige basierend auf Ihrer Navigation auf unserer Website und den Suchkriterien, die du verwendet hast.
Energieausweistyp
Verbrauchsausweis
Gebäudetyp
Wohngebäude
Baujahr laut Energieausweis
1915
Wesentliche Energieträger
GAS
Gültigkeit
bis 01.08.2028
Effizienzklasse
C
Endenergieverbrauch
88,00 kWh/(m²·a)
Weitere Energiedaten
Energieträger
Gas
Details
Objektbeschreibung
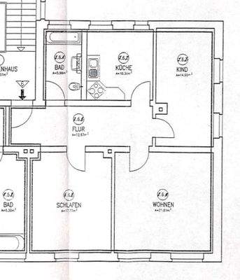
Zum Verkauf steht eine große 3-Raum-Wohnung, welche sich zentral im vogtländischen Oelsnitz befindet. Die Eigentumswohnung ist Teil einer Eigentümergemeinschaft bestehend aus 12 Wohnungen. Die knapp 83,5 qm große Wohnung befindet sich im 1. Obergeschoss. Zur Wohnung gehört ein eigener Keller.
Das charmante...
Ausstattung
Große 3-Raum-Wohnung
+ zentrale Lage von Oelsnitz im Vogtland
+ eine von 12 Wohnungen
+ Baujahr 1915, Kernsanierung 1998
Zur Wohnung
+ Wohnung wird leer und kann selbst genutzt werden oder als Renditeobjekt neu vermietet werden
+ im 1. Obergeschoss
+ ca. 83,5 qm Wohnfläche
+ Flur, Küche, Bad...
Weitere Informationen
Sonstiges
Es liegt ein Energieverbrauchsausweis vor.
Dieser ist gültig bis 1.8.2028.
Endenergieverbrauch beträgt 88.00 kwh/(m²*a).
Wesentlicher Energieträger der Heizung ist Gas.
Das Baujahr des Objekts lt. Energieausweis ist 1915.
Die Energieeffizienzklasse ist C.
Das komplette Exposé mit weiteren...
Anbieter der Immobilie
Wüstenrot Immobilien GmbH
Schandauer Str. 34, 01309 Dresden
Online-ID: 2eg5556
Referenznummer: WI 48022
Finde Angebote wie dieses
Hier geht es zu unserem Impressum, den Allgemeinen Geschäftsbedingungen, den Hinweisen zum Datenschutz und nutzungsbasierter Online-Werbung.