
Voigt Immobilien VDM
Herr Walter Voigt
065 ···
Nr. anzeigenPreise & Kosten
Verhandlungsbasis
Provision für Käufer
provisionsfrei
Abschreibung/Anlage
als Kapitalanlage geeignet
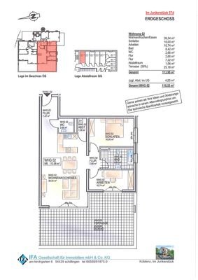
Die Wohnung
Wohnungslage
Erdgeschoss
Bezug
2026
Wohnanlage
Energie & Heizung
Warum sehe ich diese Anzeige? – Du siehst diese Anzeige basierend auf Ihrer Navigation auf unserer Website und den Suchkriterien, die du verwendet hast.
Energieausweistyp
Bedarfsausweis
Gebäudetyp
Wohngebäude
Baujahr laut Energieausweis
2023
Wesentliche Energieträger
Strom
Gültigkeit
06.06.2025 bis 06.06.2035
Effizienzklasse
A+
Endenergiebedarf
10,70 kWh/(m²·a)
Weitere Energiedaten
Energieträger
Elektro
Heizungsart
Fußbodenheizung, Luft-/Wasser-Wärmepumpe
Details
Objektbeschreibung
Objektbeschreibung
Unser langjähriger Baupartner IFA mit Sitz in 54429 Schillingen errichtet in Koblenz / Hochheimer Hohe ein hochmodernes Wohnhaus mit 12 Wohneinheiten und dem dazugehörenden PKW Parkdeck.
Mit dem Bau des Gebäudes wurde bereits begonnen.
Novum: Die Innenausstattung gemäß der beigefügten...
Weitere Informationen
Besichtigungstermine
Weiter Infos zum Projekt und Besichtigungen gerne nach Rücksprache mit uns vor Ort.
Unsere Beratung und Vermittlung ist für Sie als Käufer provisionsfrei.
Wir freuen uns auf Ihre Anfrage zum Projekt.
Stichworte
Sonstiges/Wohnen: seniorengerechtes Wohnen
Versorgung...
Dokumente
Anbieter der Immobilie
Voigt Immobilien VDM
Konstantinstraße 51, 54329 Konz
Online-ID: 2ek9m5h
Finde Angebote wie dieses
Hier geht es zu unserem Impressum, den Allgemeinen Geschäftsbedingungen, den Hinweisen zum Datenschutz und nutzungsbasierter Online-Werbung.