

Maisonette zum Kauf - Erstbezug • provisionsfrei917000 €8.602 €/m²3 Zimmer • 106,6 m²
917000 €
8.602 €/m²
3 Zimmer • 106,6 m²
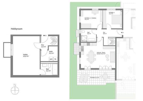
Moderne 3- bis 4-Zimmer-Gartenwohnung mit Hobbyraum und zwei Bädern
Merkmale
- Personenaufzug
- Kelleranteil
- 2 Stellplätze: Außen-Stellplatz, Tiefgarage
- Garten
- Terrasse
- Badezimmer: Badewanne, Bad mit Dusche, Bad mit Fenster
Virtueller Rundgang
Video

Realisiere Dein Projekt
Bausubstanz und Energie
Energieausweis
A+
- Baujahr2026
- Zustand der ImmobilieMassivhaus, Erstbezug
Preisdetails
Kaufpreis
917000 €
8.602,25 €/m²
Preis pro Stellplatz
26500 €
Provision für Käufer
provisionsfrei
Weitere Preisinformationen
1 Stellplatz, Kaufpreis: 8.000,00 EUR
1 Tiefgaragenstellplatz, Kaufpreis: 26.500,00 EUR
1 Tiefgaragenstellplatz, Kaufpreis: 26.500,00 EUR
Geschätzte Gesamtkosten
967.435 €1
Kaufpreis
917.000 €
Kaufnebenkosten
50.435 €
2Notarkosten (1,5%)
13.755 €
Grunderwerbsteuer (3,5%)
32.095 €
Grundbucheintrag (0,5%)
4.585 €
1Der angezeigte Wert ist eine automatisch berechnete Schätzung von immowelt.
2Bei den Angaben handelt es sich um ortsübliche Werte. Individuelle Kosten können abweichen.
Lage

Gelting, Geretsried / Gelting (82538)
Der Anbieter hat die genaue Adresse nicht freigegeben
Weitere Informationen
Weitere Services
Lust auf eine Besichtigung?
Eine Frage zur Immobilie?
Über den Anbieter
Bartsch Immobilien GmbHMaklerbüro
Sauerlacherstr. 72, 82515 Wolfratshausen
Partnerschaft

Herr Dieter KraußDein Kontakt
Online-ID: 2enn85g
Referenznummer: 14257-001


Bartsch Immobilien GmbH
Bewertung: 4,6 von 5 Sternen
Wie zufrieden bist du mit dieser Seite (nicht mit der Immobilie selbst)?

