

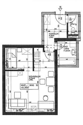
Wohnung zur Miete624 €40,4 m²
624 €
40,4 m²
Wohnung in Horn
Merkmale
Realisiere Dein Projekt
Bausubstanz und Energie
Heizwärmebedarf (HWB)
B
Gesamtenergieeffizienz (fGEE)
- Baujahr2003
Mietkosten
Gesamtmiete
624 €
Nettokaltmiete
nicht angegeben
Kaution
2180 €
Weitere Preisinformationen
Miete inkl. Betriebskosten u. USt, exkl. Strom/Heizung
Lage

Spitalgasse 8a/16, Horn (3580)
Weitere Informationen
Weitere Services
Lust auf eine Besichtigung?
Eine Frage zur Immobilie?
Ăśber den Anbieter
Wohnbauplatz 1, 3820 RAABS AN DER THAYA
Partnerschaft
WAV GemeinnĂĽtzige Bau- u. SiedlungsgenossenschaftDein Kontakt
Online-ID: 2epra5g
Referenznummer: WAV | Horn | Ärztewohnhaus | Top 16

WAV GemeinnĂĽtzige Bau- und Siedlungsgenossenschaft "Waldviertel"
Bewertung: 5 von 5 Sternen
Wie zufrieden bist du mit dieser Seite (nicht mit der Immobilie selbst)?

