

Engel & Völkers Gewerbe GmbH & Co. KG
Team Büroflächenvermietung
+49 ···
Nr. anzeigenPreise & Kosten
Provision für Mieter
Courtage frei für den Mieter
siehe Sonstiges zzgl. MwSt.
Warum sehe ich diese Anzeige? – Du siehst diese Anzeige basierend auf Ihrer Navigation auf unserer Website und den Suchkriterien, die du verwendet hast.
Lage
Das Bürogebäude befindet sich mitten im Kernbereich der City-Süd, einem der bedeutendsten Bürostandorte in Hamburg. Die S-Bahn und mehrere Bushaltestellen sind fuß-läufig erreichbar. Die Hamburger Innenstadt sowie das Auto-bahnnetz sind mit dem PKW ebenfalls bequem zu erreichen.
Büro-/Praxisfläche
Kategorie
Bürofläche
Baujahr
2004
Bezug
nach Vereinbarung
Energie & Heizung
Warum sehe ich diese Anzeige? – Du siehst diese Anzeige basierend auf Ihrer Navigation auf unserer Website und den Suchkriterien, die du verwendet hast.
Wärme
Strom
Energieausweistyp
Verbrauchsausweis
Gebäudetyp
Nicht-Wohngebäude
Baujahr laut Energieausweis
2004
Wesentliche Energieträger
Fernwärme
Gültigkeit
bis 10.07.2029
Endenergieverbrauch (Wärme)
69,20 kWh/(m²·a)
Endenergieverbrauch (Strom)
40,70 kWh/(m²·a)
Weitere Energiedaten
Energieträger
Fernwärme
Details
Objektbeschreibung
Das 9- bzw. 5-geschossige Gebäude ist höchst flächen-effizient und wirtschaftlich und ermöglicht sämtliche Büro- organisationsformen. Mit hochwertigen Materialien wird der repräsentative Charakter des Objektes unterstrichen.
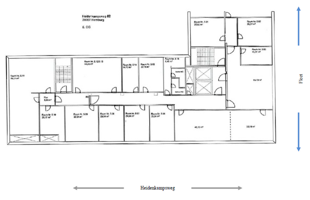
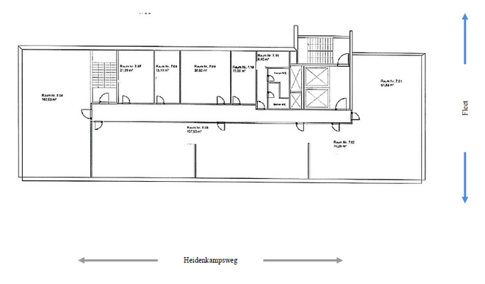
Die Flächen befinden sich im 5.-9. Obergeschoss.
Miete pro m²/mtl. ab EUR 9,95 (je nach...
Ausstattung
. direkte Fleetlage
. Textilbodenbelag
. konstruktiver Schallschutz - Doppelfassade straßenseitig
. Sonnenschutz außen
. jedes Fenster öffenbar
. optionale Kühlung
. separate Sanitäreinheiten / Pantry
. Personenaufzug
. Balkon
Weitere Informationen
Sonstiges
COURTAGE:
Courtagefrei für den Mieter.
ENERGETISCHE ECKDATEN:
Ein Energieausweis liegt zur Besichtigung vor.
IHR GESUCH:
Sie haben noch nicht das passende Objekt gefunden?
Entdecken Sie unser umfangreiches Portfolio mit weiteren Objekten unter...
Dokumente
Anbieter der Immobilie
Engel & Völkers Gewerbe GmbH & Co. KG
Stadthausbrücke 5, 20355 Hamburg

Online-ID: 2eq9r54
Referenznummer: 131733/G2
Finde Angebote wie dieses
Hier geht es zu unserem Impressum, den Allgemeinen Geschäftsbedingungen, den Hinweisen zum Datenschutz und nutzungsbasierter Online-Werbung.