

EG Immobilien Ernst Graf
Herr Ernst Graf
068 ···
Nr. anzeigenPreise & Kosten
Provision für Käufer
Provision fällt nur von Grundstück an!
Lage
Das Objekt befindet sich in bevorzugter Wohnlage von St. Ingbert SÜD!
(Am Ende einer Sackgasse)
Schnelle Anbindung zur UNI-Saarbrücken, Dudweiler und Sulzbach.
Die Nähe zur Innenstadt kombiniert mit einer Vielzahl von Einkaufs.- und Freizeitmöglichkeiten, gute Anbindung zu Schulen, Kindergärten...
Das Haus
Baujahr
2025
Energie & Heizung
Warum sehe ich diese Anzeige? – Du siehst diese Anzeige basierend auf Ihrer Navigation auf unserer Website und den Suchkriterien, die du verwendet hast.
Gebäudetyp
Wohngebäude
Weitere Energiedaten
Haustyp
Massivhaus
Heizungsart
Luft-/Wasser-Wärmepumpe
Details
Objektbeschreibung
Objektbeschreibung
Neubauvorhaben in bevorzugter Lage von St. Ingbert Süd!
(Am Ende einer Sackgasse- Nähe Hobels)
Freistendes Einfamilienhaus mit Grundstück!
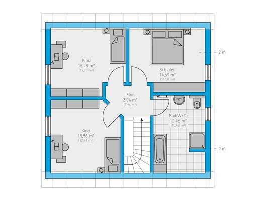
Einfamilienhaus mit ca. 129 m² Wohnfläche und ca. 365 m² Grundstück
(mit Bodenplatte).
Die energetische Ausführung des Gebäudes...
Weitere Informationen
Sonstiges
Baustelleneinrichtung (Werkzeuge, Gerüste, Baustellen-WC, u.a.)
Planzeitgarantie
Bauzeitgarantie
Fertigstellungsbürgschaft
Gewährleistungsbürgschaft für 5 Jahre
Bauherren-Haftpflicht-Versicherung
Bauleistungs-Versicherung
Fachhandwerksbetriebe aus der Region und Baustoffe renommierter...
Anbieter der Immobilie
EG Immobilien Ernst Graf
Schwarzer Weg 9, 66386 St. Ingbert

Online-ID: 2etkp5u
Referenznummer: 150925
Finde Angebote wie dieses
Hier geht es zu unserem Impressum, den Allgemeinen Geschäftsbedingungen, den Hinweisen zum Datenschutz und nutzungsbasierter Online-Werbung.