

Robert C. Spies Gewerbe und Investment GmbH & Co. KG
Frau Asena Dönmez
+49 ···
Nr. anzeigenPreise & Kosten
Kaution
3 Bruttomieten
Provision für Mieter
provisionsfrei
Warum sehe ich diese Anzeige? – Du siehst diese Anzeige basierend auf Ihrer Navigation auf unserer Website und den Suchkriterien, die du verwendet hast.
Lage
Auf einer Fläche von ca. 300 Hektar erstreckt sich das alte Hafenrevier, auf dem sich seit 1998 ein neuer Stadtteil entwickelt: Die Überseestadt. Zwischen traditioneller Hafenwirtschaft und Industriebetrieben entstehen Bürogebäude, Wohnungen mit Weserblick und hochwertige Freiräume. Die hier offerierte Bürofläche befindet...
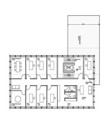
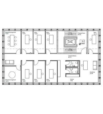
Büro-/Praxisfläche
Kategorie
Bürofläche
Baujahr
2021
Bezug
Nach Absprache
Energie & Heizung
Warum sehe ich diese Anzeige? – Du siehst diese Anzeige basierend auf Ihrer Navigation auf unserer Website und den Suchkriterien, die du verwendet hast.
Wärme
Strom
Energieausweistyp
Bedarfsausweis
Gebäudetyp
Nicht-Wohngebäude
Baujahr laut Energieausweis
2021
Wesentliche Energieträger
Alternative Energien
Gültigkeit
07.12.2021 bis 06.12.2031
Endenergiebedarf (Wärme)
132,00 kWh/(m²·a)
Endenergiebedarf (Strom)
79,90 kWh/(m²·a)
Details
Ausstattung
Dieses Gebäude ist nach modernen Büro- und energetischen Standards errichtet worden.
Die flächeneffizienten Geschosse können grundsätzlich nach Wunsch des Mieters aufgeteilt und ausgebaut werden. Sämtliche Büro- und Gewerbeflächen sind barrierefrei zugänglich.
Außerdem besticht das Objekt exemplarisch durch folgende...
Preisinformation
60 Tiefgaragenstellplätze, Miete je: 70,00 EUR
Weitere Informationen
Sonstiges
Die Gebäude sind bereits fertiggestellt. Gerne stellen wir Ihnen dieses Objekt und die individuell gestaltbaren Flächen direkt vor Ort vor! Hierzu begrüßen wir Sie gerne in den für Sie hergerichteten Musterbüroflächen!
Die Nebenkosten enthalten alle üblichen Betriebskosten (Grundsteuer, Versicherungen...
Anbieter der Immobilie
Robert C. Spies Gewerbe und Investment GmbH & Co. KG
Domshof 21, 28195 Bremen

Online-ID: 2eu955h
Referenznummer: 21918
Finde Angebote wie dieses
Hier geht es zu unserem Impressum, den Allgemeinen Geschäftsbedingungen, den Hinweisen zum Datenschutz und nutzungsbasierter Online-Werbung.