

Betac Immobilien Dr. Carola Braun
Frau Carola Braun
024 ···
Nr. anzeigenPreise & Kosten
Provision für Käufer
Keine Provision für den Käufer
Lage
Die Grundstu?cke liegen in ruhiger Lage vom belgischen Raeren-Petergensfeld, direkt am deutschen Dorf Roetgen, in dem alle infrastrukturellen Einrichtungen vorhanden sind. In dieser Grenzregion profitieren Sie von den Vorteilen beider Länder und können frei entscheiden welche Zeitung, Krankenversicherung, Handynetz, Schule...
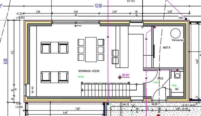
Das Haus
Kategorie
Einfamilienhaus
Details
Objektbeschreibung
Die Gemeinde Raeren (B), direkt angrenzend an die Eifelgemeinde Roetgen (D), stellt durch ihre Grenzlage einen besonderen Wohnort dar. Verwirklichen Sie Ihren Traum vom lang ersehnten Eigenheim in einer Region, die sich durch naturnahes Wohnen, einen hohen Freizeitwert sowie eine hervorragende Nahversorgung...
Ausstattung
EFH nicht unterkellert
- Klinkerverblendung mit 12 cm Hartschaumdämmung
- Satteldachkonstruktion
- Luft-Wasser-Wärmepumpe als Splitgerät mit Fußbodenheizung im EG und OG
- kontrollierter Lu?ftungsanlage
- Schotter im Terrassenbereich & Zuwegung
- Anschlu?sse & Drainage enthalten
-...
Weitere Informationen
Sonstiges
Diese Objekte vermarkten wir in Kooperation mit unserem belgischen Partner Euro Immo. Alle Angaben haben wir sorgfältig zusammengetragen. Hierbei mu?ssen wir uns jedoch auf die Informationen der Verkäufer und Dritter stu?tzen. Wir können deshalb fu?r die Richtigkeit und Vollständigkeit keine Gewähr u?bernehmen.
Anbieter der Immobilie
Betac Immobilien Dr. Carola Braun
Roetgenbachstraße 45, 52159 Roetgen

Online-ID: 2euqd5b
Referenznummer: BelWes4EFH
Finde Angebote wie dieses
Hier geht es zu unserem Impressum, den Allgemeinen Geschäftsbedingungen, den Hinweisen zum Datenschutz und nutzungsbasierter Online-Werbung.