
Immo Gackstatter26
Frau Jutta Gackstatter
+49 ···
Nr. anzeigenPreise & Kosten
Provision für Käufer
3,57 % inkl. Mwst inkl. MwSt.
Abschreibung/Anlage
Denkmalschutz-Afa
Lage
Dinkelsbühl ist eine große Kreisstadt im Landkreis Ansbach in Mittelfranken. Die ehemalige Reichsstadt ist aufgrund des außergewöhnlich gut erhaltenen spätmittelalterlichen Stadtbildes ein bedeutender Tourismusort an der Romantischen Straße. Seit 1998 ist Dinkelsbühl Große Kreisstadt.
Dinkelsbühl liegt an der...
Das Haus
Kategorie
Mehrfamilienhaus
Baujahr
1650
Energie & Heizung
Warum sehe ich diese Anzeige? – Du siehst diese Anzeige basierend auf Ihrer Navigation auf unserer Website und den Suchkriterien, die du verwendet hast.
Energieausweis: für diesen Gebäudetyp nicht notwendig
Weitere Energiedaten
Energieträger
Gas
Heizungsart
Etagenheizung
Details
Objektbeschreibung
In diesem denkmalgeschützten Haus das liebevoll und kostenaufwendig saniert wurde ist Wohlfühlen angesagt.
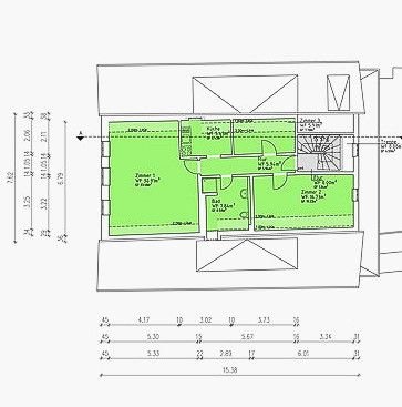
Dieses Mehrfamilienhaus besteht aus 7 Wohnungen, die alle vermietet sind. Die Wohnung Nr. 1 wurde verkauft.
Alle folgend aufgeführte Wohnungen sind mit modernen EBK und Tageslichtbädern ausgestattet. Jeder der...
Ausstattung
7 Moderne Einbauküchen
7 Schicke Tageslichtbäder mit Duschen, Einzel oder Doppelwaschbecken
Sauna in einer Wohnung Nr. 2
Echtholzparkettböden
Moderne Fliesenböden
Gasetagenheizung für jede Wohneinheit
Überdachter Zugang zum Wohnhaus
zusätzliche Scheune mit den zugehörigen Abstellräumen der Wohnungen...
Preisinformation
8 Garagenstellplätze
Weitere Informationen
Sonstiges
Der Makler weist darauf hin, dass er für die inhaltliche Richtigkeit der übermittelten Daten des oben genannten Objektes nicht haftet, da er diese vom Eigentümer lediglich zur Verfügung gestellt bekommen hat.
Mehr Informationen erhalten Sie im Exposè. Die Bearbeitung ist nur mit vollständigen Kontaktdaten...
Anbieter der Immobilie
Online-ID: 2ewud5j
Referenznummer: 2024-288C
Finde Angebote wie dieses
Hier geht es zu unserem Impressum, den Allgemeinen Geschäftsbedingungen, den Hinweisen zum Datenschutz und nutzungsbasierter Online-Werbung.