

Main ImmobilienReich
Herr Michael Lauer
+49 ···
Nr. anzeigenPreise & Kosten
Provision für Käufer
Provisionspflichtiges Angebot.
Die Provisionshöhe für Verkäufer und Käufer beträgt jeweils 3 % zzgl. gesetzlicher MwSt. von 19 %, gesamt 3,57 % berechnet vom notariell beurkundeten Kaufpreis.
Lage
Beste Wohnlage im bevorzugten Frankfurter Westend Nord.
Das Haus liegt ruhig und zurückgesetzt an einer Parkanlage.
Umliegende Bebauung mit gepflegten Wohnhäusern der Jahrhundertwende.
Gute Infrastruktur durch die Nähe zur City und dem Bankenviertel.
Bekannte Restaurants wie Erno´s, Bistro...
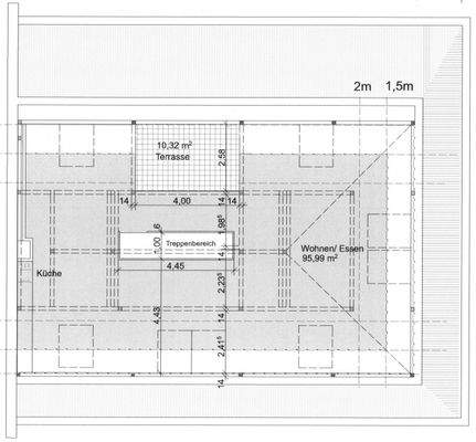
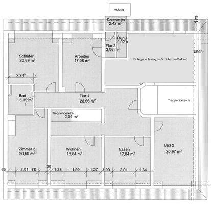
Die Wohnung
Kategorie
Maisonette
Wohnungslage
4. Geschoss (Dachgeschoss)
Bezug
Vereinbarung
Wohnanlage
Energie & Heizung
Warum sehe ich diese Anzeige? – Du siehst diese Anzeige basierend auf Ihrer Navigation auf unserer Website und den Suchkriterien, die du verwendet hast.
Energieausweis: für diesen Gebäudetyp nicht notwendig
Weitere Energiedaten
Energieträger
Gas
Heizungsart
Zentralheizung
Details
Objektbeschreibung
Objektbeschreibung:
Große Maisonette-Eigentumswohnung im 4. Obergeschoss in einem denkmalgeschützten Altbau-Mehrfamilienhaus.
1904 in Stil des Neoklassizismus und Jugendstil erbaut.
Nur fünf Wohneinheiten.
Das Gebäude wurde 2012 umfassend renoviert und modernisiert; es ist aktuell in gutem und...
Weitere Informationen
Besichtigungstermine:
Damit wir Ihre Anfrage ordentlich beantworten können, teilen Sie uns bitte freundlicherweise Ihren vollständigen Namen, Anschrift, Telefonnummer und Ihre E-Mail Adresse mit. Vielen Dank.
Weitere Informationen erhalten Sie gerne unter den nachstehenden Kontaktdaten.
Telefon: +4969...
Anbieter der Immobilie
Main ImmobilienReich
Liebigstraße 21a, 60323 Frankfurt am Main

Online-ID: 2exan52
Referenznummer: 12424
Finde Angebote wie dieses
Hier geht es zu unserem Impressum, den Allgemeinen Geschäftsbedingungen, den Hinweisen zum Datenschutz und nutzungsbasierter Online-Werbung.